Elected Officials
Courts
Departments
Initiatives
Open Government
About
Login / Register
Home
/
Property & Tax Records
/
Property Records
/
Property & Tax Search
/
Parcel Profile
/
Print View
Search for Another Parcel
Parcel Profile
Historical Card
Sketches
Photos
Tax Map
Taxes
Print View
Print This Page
Address: 3902 ELIOT RD
Parcel: 18053039020900
Parcel Profile
Address
3902 | ELIOT | RD
Street Status
PAVED | SIDEWALK
School District
CITY OF ERIE SCHOOL
Acreage
0.1515
Classification
R
Land Use Code
SINGLE FAMILY
Legal Description
3902 ELIOT RD 60 X 110
Square Feet
1828
Topo
LEVEL
Utility
ALL PUBLIC
Zoning
Please contact your municipal zoning officer
Deed Book
0151
Deed Page
1843
2026 Tax Values
Land Value / Taxable
42,300 / 42,300.00
Building Value / Taxable
89,700 / 89,700.00
Total Value / Taxable
132,000 / 132,000.00
Clean & Green
Inactive
Homestead Status
Active
Farmstead Status
Inactive
Lerta Amount
0
Lerta Expiration Year
0
Residential Data
Card 1
Style
COLONIAL
Basement
FULL
Year Built
1926
Exterior Wall
BRICK
Total Living Area
1828
Full Baths
1
Half Baths
1
Fuel Type
GAS
Heating
CENTRAL A/C
Heating System
FORCED AIR
Stories
2.0
Total Bedrooms
4
Total Family Rooms
0
Total Rooms
8
Fireplaces
0
Other Buildings & Yards
Description
Built
Width
Length
Area
FRAME OR CB DETACHED GARAGE
2003
24
24
576
Sales History
Sale Date
Type
Price
Book / Page
Other Info
2/28/1991
0
0151 / 1843
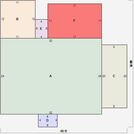
Parcel Sketches
Residential Card 1
A
MAIN
768 square feet
B
1S FR ONE STORY FRAME
132 square feet
C
UNFIN BSMT BASEMENT UNFINISHED 1SMAS MASONRY
160 square feet
D
OFP OPEN FRAME PORCH
24 square feet
E
WDDCK WOOD DECKS
24 square feet
F
WDDCK WOOD DECKS
187 square feet
Parcel Images
Please note:
this tab is for informational purposes only and may not show all delinquencies, see the Taxes tab for more accurate delinquent taxes due.