Elected Officials
Courts
Departments
Initiatives
Open Government
About
Login / Register
Home
/
Property & Tax Records
/
Property Records
/
Property & Tax Search
/
Parcel Profile
/
Print View
Search for Another Parcel
Parcel Profile
Historical Card
Sketches
Photos
Tax Map
Taxes
Print View
Print This Page
Address: 3815 ELIOT RD
Parcel: 18053041021600
Parcel Profile
Address
3815 | ELIOT | RD
Street Status
PAVED
School District
CITY OF ERIE SCHOOL
Acreage
0.1721
Classification
R
Land Use Code
SINGLE FAMILY
Legal Description
3815 ELIOT RD 52XIRREG
Square Feet
1722
Topo
LEVEL
Utility
ALL PUBLIC
Zoning
Please contact your municipal zoning officer
Deed Book
2024
Deed Page
004969
2026 Tax Values
Land Value / Taxable
43,000 / 43,000.00
Building Value / Taxable
82,000 / 82,000.00
Total Value / Taxable
125,000 / 125,000.00
Clean & Green
Inactive
Homestead Status
Inactive
Farmstead Status
Inactive
Lerta Amount
0
Lerta Expiration Year
0
Residential Data
Card 1
Style
CONVENTIONAL
Basement
FULL
Year Built
1930
Exterior Wall
MASONRY & FRAME
Total Living Area
1722
Full Baths
1
Half Baths
1
Fuel Type
GAS
Heating
CENTRAL
Heating System
FORCED AIR
Stories
2.0
Total Bedrooms
3
Total Family Rooms
0
Total Rooms
7
Fireplaces
0
Other Buildings & Yards
Description
Built
Width
Length
Area
FRAME OR CB DETACHED GARAGE
1948
20
22
440
FRAME UTILITY SHED
1948
9
22
198
Sales History
Sale Date
Type
Price
Book / Page
Other Info
4/4/2024
LAND & BUILDING
177000
2024 / 004969
SPECIAL WARRANTY DEED
4/30/2003
LAND & BUILDING
127000
1005 / 810
1/18/2000
LAND & BUILDING
114250
/
1/18/2000
0
0683 / 1654
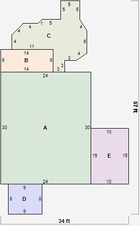
Parcel Sketches
Residential Card 1
A
MAIN
720 square feet
B
1S FR ONE STORY FRAME
84 square feet
C
WDDCK WOOD DECKS
203 square feet
D
OMP OPEN MASONRY PORCH
72 square feet
E
UNFIN BSMT BASEMENT UNFINISHED 1SMAS MASONRY
150 square feet
Parcel Images
Please note:
this tab is for informational purposes only and may not show all delinquencies, see the Taxes tab for more accurate delinquent taxes due.