Elected Officials
Courts
Departments
Initiatives
Open Government
About
Login / Register
Home
/
Property & Tax Records
/
Property Records
/
Property & Tax Search
/
Parcel Profile
/
Print View
Search for Another Parcel
Parcel Profile
Historical Card
Sketches
Photos
Tax Map
Taxes
Print View
Print This Page
Address: 3937 SASSAFRAS ST
Parcel: 18053042012100
Parcel Profile
Address
3937 | SASSAFRAS | ST
Street Status
PAVED | SIDEWALK
School District
CITY OF ERIE SCHOOL
Acreage
0.1267
Classification
R
Land Use Code
SINGLE FAMILY
Legal Description
3937 SASSAFRAS ST 48X115.4
Square Feet
1575
Topo
LEVEL
Utility
ALL PUBLIC
Zoning
Please contact your municipal zoning officer
Deed Book
2014
Deed Page
013152
2026 Tax Values
Land Value / Taxable
41,400 / 41,400.00
Building Value / Taxable
107,550 / 107,550.00
Total Value / Taxable
148,950 / 148,950.00
Clean & Green
Inactive
Homestead Status
Active
Farmstead Status
Inactive
Lerta Amount
0
Lerta Expiration Year
0
Residential Data
Card 1
Style
CAPE
Basement
FULL
Year Built
1936
Exterior Wall
ALUMINUM/VINYL
Total Living Area
1575
Full Baths
2
Half Baths
1
Fuel Type
GAS
Heating
CENTRAL
Heating System
HOT WATER
Stories
1.0
Total Bedrooms
3
Total Family Rooms
0
Total Rooms
7
Fireplaces
2
Other Buildings & Yards
Description
Built
Width
Length
Area
FRAME OR CB DETACHED GARAGE
1936
20
20
400
Sales History
Sale Date
Type
Price
Book / Page
Other Info
6/30/2014
LAND & BUILDING
160000
2014 / 013152
SPECIAL WARRANTY DEED
8/31/2009
LAND & BUILDING
148000
1587 / 0732
SPECIAL WARRANTY DEED
6/12/1998
0
0567 / 1204
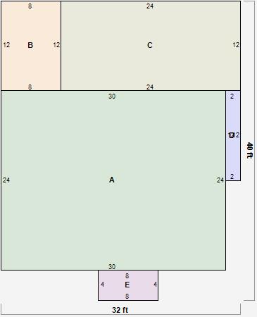
Parcel Sketches
Residential Card 1
A
MAIN
720 square feet
B
WDDCK WOOD DECKS
96 square feet
C
1S FR ONE STORY FRAME AT FN ATTIC-FINISHED
288 square feet
D
1S FR ONE STORY FRAME
24 square feet
E
1S FR ONE STORY FRAME
32 square feet
Parcel Images
Please note:
this tab is for informational purposes only and may not show all delinquencies, see the Taxes tab for more accurate delinquent taxes due.