Elected Officials
Courts
Departments
Initiatives
Open Government
About
Login / Register
Home
/
Property & Tax Records
/
Property Records
/
Property & Tax Search
/
Parcel Profile
/
Print View
Search for Another Parcel
Parcel Profile
Historical Card
Sketches
Photos
Tax Map
Taxes
Print View
Print This Page
Address: 3928 SASSAFRAS ST
Parcel: 18053042030200
Parcel Profile
Address
3928 | SASSAFRAS | ST
Street Status
PAVED | SIDEWALK
School District
CITY OF ERIE SCHOOL
Acreage
0.2755
Classification
R
Land Use Code
SINGLE FAMILY
Legal Description
3928 SASSAFRAS ST 79.68X150
Square Feet
3484
Topo
LEVEL
Utility
ALL PUBLIC
Zoning
Please contact your municipal zoning officer
Deed Book
2012
Deed Page
020705
2026 Tax Values
Land Value / Taxable
46,700 / 46,700.00
Building Value / Taxable
178,300 / 178,300.00
Total Value / Taxable
225,000 / 225,000.00
Clean & Green
Inactive
Homestead Status
Active
Farmstead Status
Inactive
Lerta Amount
0
Lerta Expiration Year
0
Residential Data
Card 1
Style
COLONIAL
Basement
FULL
Year Built
1930
Exterior Wall
BRICK
Total Living Area
3484
Full Baths
1
Half Baths
1
Fuel Type
GAS
Heating
CENTRAL
Heating System
HOT WATER
Stories
2.0
Total Bedrooms
6
Total Family Rooms
0
Total Rooms
12
Fireplaces
5
Other Buildings & Yards
Description
Built
Width
Length
Area
FRAME OR CB DETACHED GARAGE
1950
24
28
672
Sales History
Sale Date
Type
Price
Book / Page
Other Info
8/1/2012
LAND & BUILDING
225900
2012 / 020705
SPECIAL WARRANTY DEED
9/15/2004
LAND & BUILDING
220000
1173 / 1223
WARRANTY/SURVIVORSHIP DEED
7/12/1990
0
0129 / 1391
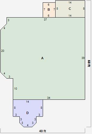
Parcel Sketches
Residential Card 1
A
MAIN
1482 square feet
B
OFP OPEN FRAME PORCH
42 square feet
C
UNFIN BSMT BASEMENT UNFINISHED 1SMAS MASONRY 1SMAS MASONRY
112 square feet
D
OFP OPEN FRAME PORCH WDDCK WOOD DECKS
148 square feet
Parcel Images
Please note:
this tab is for informational purposes only and may not show all delinquencies, see the Taxes tab for more accurate delinquent taxes due.