Elected Officials
Courts
Departments
Initiatives
Open Government
About
Login / Register
Home
/
Property & Tax Records
/
Property Records
/
Property & Tax Search
/
Parcel Profile
/
Print View
Search for Another Parcel
Parcel Profile
Historical Card
Sketches
Photos
Tax Map
Taxes
Print View
Print This Page
Address: 4201 SASSAFRAS 105.50X115.40 STREET
Parcel: 18053044010500
Parcel Profile
Address
4201 | SASSAFRAS 105.50X115.40 | STREET
Street Status
PAVED
School District
CITY OF ERIE SCHOOL
Acreage
0.2772
Classification
R
Land Use Code
SINGLE FAMILY
Legal Description
4201 SASSAFRAS 105.50X115.40
Square Feet
2000
Topo
LEVEL
Utility
ALL PUBLIC
Zoning
Please contact your municipal zoning officer
Deed Book
0218
Deed Page
0359
2026 Tax Values
Land Value / Taxable
46,800 / 46,800.00
Building Value / Taxable
118,730 / 118,730.00
Total Value / Taxable
165,530 / 165,530.00
Clean & Green
Inactive
Homestead Status
Active
Farmstead Status
Inactive
Lerta Amount
0
Lerta Expiration Year
0
Residential Data
Card 1
Style
COLONIAL
Basement
FULL
Year Built
1927
Exterior Wall
FRAME
Total Living Area
2000
Full Baths
1
Half Baths
1
Fuel Type
GAS
Heating
CENTRAL
Heating System
FORCED AIR
Stories
2.0
Total Bedrooms
4
Total Family Rooms
0
Total Rooms
7
Fireplaces
1
Other Buildings & Yards
No OBY Data Found
Sales History
Sale Date
Type
Price
Book / Page
Other Info
6/22/1992
0
0218 / 0359
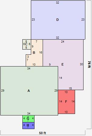
Parcel Sketches
Residential Card 1
A
MAIN
986 square feet
B
EFP ENCL FRAME PORCH
133 square feet
C
MA STOOP/TERR MAS STOOP
30 square feet
D
FR GR FRAME GARAGE
736 square feet
E
MA STOOP/TERR MAS STOOP
594 square feet
F
EFP ENCL FRAME PORCH
140 square feet
G
MA_PT CONC/MAS PATIO
28 square feet
H
1S FR ONE STORY FRAME
28 square feet
Parcel Images
Please note:
this tab is for informational purposes only and may not show all delinquencies, see the Taxes tab for more accurate delinquent taxes due.