Elected Officials
Courts
Departments
Initiatives
Open Government
About
Login / Register
Home
/
Property & Tax Records
/
Property Records
/
Property & Tax Search
/
Parcel Profile
/
Print View
Search for Another Parcel
Parcel Profile
Historical Card
Sketches
Photos
Tax Map
Taxes
Print View
Print This Page
Address: 4014 BEECH AVE
Parcel: 18053048030300
Parcel Profile
Address
4014 | BEECH | AVE
Street Status
PAVED | SIDEWALK
School District
CITY OF ERIE SCHOOL
Acreage
0.1366
Classification
R
Land Use Code
SINGLE FAMILY
Legal Description
4014 BEECH AVE 50X119.5
Square Feet
1613
Topo
LEVEL
Utility
ALL PUBLIC
Zoning
Please contact your municipal zoning officer
Deed Book
2024
Deed Page
003752
2026 Tax Values
Land Value / Taxable
41,700 / 41,700.00
Building Value / Taxable
104,010 / 104,010.00
Total Value / Taxable
145,710 / 145,710.00
Clean & Green
Inactive
Homestead Status
Active
Farmstead Status
Inactive
Lerta Amount
0
Lerta Expiration Year
0
Residential Data
Card 1
Style
CAPE
Basement
FULL
Year Built
1930
Exterior Wall
FRAME
Total Living Area
1613
Full Baths
1
Half Baths
1
Fuel Type
GAS
Heating
CENTRAL A/C
Heating System
FORCED AIR
Stories
1.0
Total Bedrooms
3
Total Family Rooms
0
Total Rooms
9
Fireplaces
1
Other Buildings & Yards
Description
Built
Width
Length
Area
FRAME OR CB DETACHED GARAGE
1930
20
20
400
Sales History
Sale Date
Type
Price
Book / Page
Other Info
3/13/2024
LAND & BUILDING
201000
2024 / 003752
SPECIAL WARRANTY DEED
11/25/2002
LAND & BUILDING
0
0949 / 0122
AFFIDAVIT
12/4/1992
0
0243 / 0479
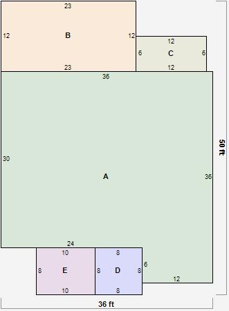
Parcel Sketches
Residential Card 1
A
MAIN
1152 square feet
B
MA_PT CONC/MAS PATIO
276 square feet
C
MA STOOP/TERR MAS STOOP
72 square feet
D
OMP OPEN MASONRY PORCH
64 square feet
E
MA_PT CONC/MAS PATIO
80 square feet
Parcel Images
Please note:
this tab is for informational purposes only and may not show all delinquencies, see the Taxes tab for more accurate delinquent taxes due.