Elected Officials
Courts
Departments
Initiatives
Open Government
About
Login / Register
Home
/
Property & Tax Records
/
Property Records
/
Property & Tax Search
/
Parcel Profile
/
Print View
Search for Another Parcel
Parcel Profile
Historical Card
Sketches
Photos
Tax Map
Taxes
Print View
Print This Page
Address: 3921 TRASK AVE
Parcel: 18053048031600
Parcel Profile
Address
3921 | TRASK | AVE
Street Status
PAVED | SIDEWALK
School District
CITY OF ERIE SCHOOL
Acreage
0.1257
Classification
R
Land Use Code
SINGLE FAMILY
Legal Description
3921 TRASK AVE 46X119.4
Square Feet
1591
Topo
LEVEL
Utility
ALL PUBLIC
Zoning
Please contact your municipal zoning officer
Deed Book
2013
Deed Page
021606
2026 Tax Values
Land Value / Taxable
41,300 / 41,300.00
Building Value / Taxable
91,700 / 91,700.00
Total Value / Taxable
133,000 / 133,000.00
Clean & Green
Inactive
Homestead Status
Active
Farmstead Status
Inactive
Lerta Amount
0
Lerta Expiration Year
0
Residential Data
Card 1
Style
CAPE
Basement
PART
Year Built
1939
Exterior Wall
BRICK
Total Living Area
1591
Full Baths
2
Half Baths
0
Fuel Type
GAS
Heating
CENTRAL A/C
Heating System
FORCED AIR
Stories
1.0
Total Bedrooms
3
Total Family Rooms
1
Total Rooms
7
Fireplaces
1
Other Buildings & Yards
Description
Built
Width
Length
Area
FRAME OR CB DETACHED GARAGE
1939
11
21
231
Sales History
Sale Date
Type
Price
Book / Page
Other Info
8/15/2013
LAND & BUILDING
133000
2013 / 021606
WARRANTY/SURVIVORSHIP DEED
9/12/2012
LAND & BUILDING
88000
2012 / 025029
SPECIAL WARRANTY DEED
10/8/2008
LAND & BUILDING
0
1524 / 1763
QUIT CLAIM DEED
5/24/1999
0
0638 / 0136
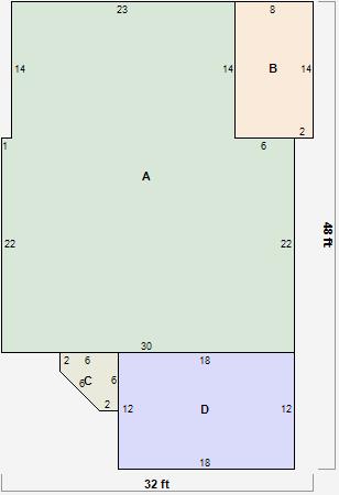
Parcel Sketches
Residential Card 1
A
MAIN
982 square feet
B
OFP OPEN FRAME PORCH
112 square feet
C
EMP ENCL MASONRY PORCH
28 square feet
D
UNFIN BSMT BASEMENT UNFINISHED 1SMAS MASONRY AT UN ATTIC-UNFINISHED
216 square feet
Parcel Images
Please note:
this tab is for informational purposes only and may not show all delinquencies, see the Taxes tab for more accurate delinquent taxes due.