Elected Officials
Courts
Departments
Initiatives
Open Government
About
Login / Register
Home
/
Property & Tax Records
/
Property Records
/
Property & Tax Search
/
Parcel Profile
/
Print View
Search for Another Parcel
Parcel Profile
Historical Card
Sketches
Photos
Tax Map
Taxes
Print View
Print This Page
Address: 17 W 38 ST BLVD
Parcel: 18053049020600
Parcel Profile
Address
17 | W | 38 ST | BLVD
Street Status
PAVED | SIDEWALK
School District
CITY OF ERIE SCHOOL
Acreage
0.1469
Classification
R
Land Use Code
SINGLE FAMILY
Legal Description
17 W 38 ST BLVD 50X128
Square Feet
2064
Topo
LEVEL
Utility
ALL PUBLIC
Zoning
Please contact your municipal zoning officer
Deed Book
2019
Deed Page
009831
2025 Tax Values
Land Value / Taxable
42,100 / 42,100.00
Building Value / Taxable
107,900 / 107,900.00
Total Value / Taxable
150,000 / 150,000.00
Clean & Green
Inactive
Homestead Status
Active
Farmstead Status
Inactive
Lerta Amount
0.00
Lerta Expiration Year
2013
Residential Data
Card 1
Style
OLD STYLE
Basement
FULL
Year Built
1925
Exterior Wall
MASONRY & FRAME
Total Living Area
2064
Full Baths
1
Half Baths
1
Fuel Type
GAS
Heating
CENTRAL A/C
Heating System
FORCED AIR
Stories
2.0
Total Bedrooms
3
Total Family Rooms
0
Total Rooms
6
Fireplaces
1
Other Buildings & Yards
Description
Built
Width
Length
Area
FRAME OR CB DETACHED GARAGE
2004
24
24
576
DETACHED OPEN FR PORCH
2004
9
18
162
Sales History
Sale Date
Type
Price
Book / Page
Other Info
5/29/2019
LAND & BUILDING
146000
2019 / 009831
FIDUCIARY DEED
1/14/1960
0
0813 / 0447
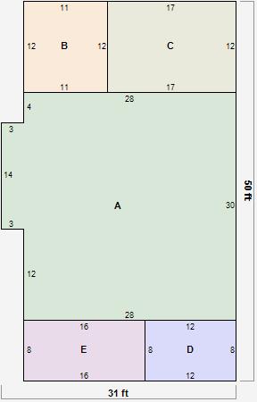
Parcel Sketches
Residential Card 1
A
MAIN
882 square feet
B
OMP OPEN MASONRY PORCH
132 square feet
C
1S FR ONE STORY FRAME
204 square feet
D
1SMAS MASONRY
96 square feet
E
EMP ENCL MASONRY PORCH
128 square feet
Parcel Images