Elected Officials
Courts
Departments
Initiatives
Open Government
About
Login / Register
Home
/
Property & Tax Records
/
Property Records
/
Property & Tax Search
/
Parcel Profile
/
Print View
Search for Another Parcel
Parcel Profile
Historical Card
Sketches
Photos
Tax Map
Taxes
Print View
Print This Page
Address: 3850 BEECH AVE
Parcel: 18053049030200
Parcel Profile
Address
3850 | BEECH | AVE
Street Status
PAVED | SIDEWALK
School District
CITY OF ERIE SCHOOL
Acreage
0.1366
Classification
R
Land Use Code
SINGLE FAMILY
Legal Description
3850 BEECH AVE 50X119.5
Square Feet
1788
Topo
LEVEL
Utility
ALL PUBLIC
Zoning
Please contact your municipal zoning officer
Deed Book
0271
Deed Page
1557
2026 Tax Values
Land Value / Taxable
41,700 / 41,700.00
Building Value / Taxable
91,000 / 91,000.00
Total Value / Taxable
132,700 / 132,700.00
Clean & Green
Inactive
Homestead Status
Active
Farmstead Status
Inactive
Lerta Amount
0
Lerta Expiration Year
0
Residential Data
Card 1
Style
CONVENTIONAL
Basement
FULL
Year Built
1924
Exterior Wall
FRAME
Total Living Area
1788
Full Baths
1
Half Baths
1
Fuel Type
GAS
Heating
CENTRAL A/C
Heating System
FORCED AIR
Stories
2.0
Total Bedrooms
2
Total Family Rooms
0
Total Rooms
7
Fireplaces
1
Other Buildings & Yards
Description
Built
Width
Length
Area
FRAME OR CB DETACHED GARAGE
1930
14
20
280
Sales History
Sale Date
Type
Price
Book / Page
Other Info
5/28/1993
0
0271 / 1557
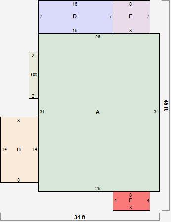
Parcel Sketches
Residential Card 1
A
MAIN
884 square feet
B
OFP OPEN FRAME PORCH
112 square feet
C
FRBAY FRAME BAY
20 square feet
D
WDDCK WOOD DECKS
112 square feet
E
EFP ENCL FRAME PORCH
56 square feet
F
OFP OPEN FRAME PORCH
32 square feet
Parcel Images
Please note:
this tab is for informational purposes only and may not show all delinquencies, see the Taxes tab for more accurate delinquent taxes due.