Elected Officials
Courts
Departments
Initiatives
Open Government
About
Login / Register
Home
/
Property & Tax Records
/
Property Records
/
Property & Tax Search
/
Parcel Profile
/
Print View
Search for Another Parcel
Parcel Profile
Historical Card
Sketches
Photos
Tax Map
Taxes
Print View
Print This Page
Address: 3845 TRASK AVE
Parcel: 18053049032000
Parcel Profile
Address
3845 | TRASK | AVE
Street Status
PAVED | SIDEWALK
School District
CITY OF ERIE SCHOOL
Acreage
0.1421
Classification
R
Land Use Code
SINGLE FAMILY
Legal Description
3845 TRASK AVE 52 X 119.4
Square Feet
1832
Topo
LEVEL
Utility
ALL PUBLIC
Zoning
Please contact your municipal zoning officer
Deed Book
0107
Deed Page
2378
2026 Tax Values
Land Value / Taxable
41,900 / 41,900.00
Building Value / Taxable
113,910 / 113,910.00
Total Value / Taxable
155,810 / 155,810.00
Clean & Green
Inactive
Homestead Status
Active
Farmstead Status
Inactive
Lerta Amount
0
Lerta Expiration Year
0
Residential Data
Card 1
Style
CONVENTIONAL
Basement
FULL
Year Built
1929
Exterior Wall
BRICK
Total Living Area
1832
Full Baths
1
Half Baths
1
Fuel Type
GAS
Heating
CENTRAL A/C
Heating System
FORCED AIR
Stories
2.0
Total Bedrooms
3
Total Family Rooms
0
Total Rooms
7
Fireplaces
1
Other Buildings & Yards
Description
Built
Width
Length
Area
FRAME OR CB DETACHED GARAGE
2001
24
24
576
Sales History
Sale Date
Type
Price
Book / Page
Other Info
12/13/1989
0
0107 / 2378
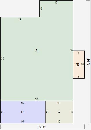
Parcel Sketches
Residential Card 1
A
MAIN
852 square feet
B
MA STOOP/TERR MAS STOOP
40 square feet
C
OMP OPEN MASONRY PORCH
80 square feet
D
UNFIN BSMT BASEMENT UNFINISHED 1SMAS MASONRY
128 square feet
Parcel Images