Elected Officials
Courts
Departments
Initiatives
Open Government
About
Login / Register
Home
/
Property & Tax Records
/
Property Records
/
Property & Tax Search
/
Parcel Profile
/
Print View
Search for Another Parcel
Parcel Profile
Historical Card
Sketches
Photos
Tax Map
Taxes
Print View
Print This Page
Address: 18 NORMAN WAY
Parcel: 18053051031500
Parcel Profile
Address
18 | NORMAN | WAY
Street Status
PAVED | SIDEWALK
School District
CITY OF ERIE SCHOOL
Acreage
0.1306
Classification
R
Land Use Code
SINGLE FAMILY
Legal Description
18 NORMAN WAY IRREG
Square Feet
1965
Topo
LEVEL
Utility
ALL PUBLIC
Zoning
Please contact your municipal zoning officer
Deed Book
0332
Deed Page
2000
2026 Tax Values
Land Value / Taxable
41,500 / 41,500.00
Building Value / Taxable
97,200 / 97,200.00
Total Value / Taxable
138,700 / 138,700.00
Clean & Green
Inactive
Homestead Status
Active
Farmstead Status
Inactive
Lerta Amount
0.00
Lerta Expiration Year
2015
Residential Data
Card 1
Style
COLONIAL
Basement
FULL
Year Built
1930
Exterior Wall
BRICK
Total Living Area
1965
Full Baths
1
Half Baths
1
Fuel Type
GAS
Heating
CENTRAL
Heating System
FORCED AIR
Stories
2.0
Total Bedrooms
3
Total Family Rooms
0
Total Rooms
7
Fireplaces
1
Other Buildings & Yards
Description
Built
Width
Length
Area
FRAME OR CB DETACHED GARAGE
2005
14
22
308
Sales History
Sale Date
Type
Price
Book / Page
Other Info
5/5/1994
0
0332 / 2000
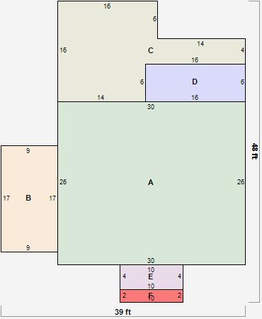
Parcel Sketches
Residential Card 1
A
MAIN
780 square feet
B
UNFIN BSMT BASEMENT UNFINISHED 1SMAS MASONRY
153 square feet
C
WDDCK WOOD DECKS
300 square feet
D
UNFIN BSMT BASEMENT UNFINISHED 1SMAS MASONRY
96 square feet
E
EMP ENCL MASONRY PORCH
40 square feet
F
OFP OPEN FRAME PORCH
20 square feet
Parcel Images
Please note:
this tab is for informational purposes only and may not show all delinquencies, see the Taxes tab for more accurate delinquent taxes due.