Elected Officials
Courts
Departments
Initiatives
Open Government
About
Login / Register
Home
/
Property & Tax Records
/
Property Records
/
Property & Tax Search
/
Parcel Profile
/
Print View
Search for Another Parcel
Parcel Profile
Historical Card
Sketches
Photos
Tax Map
Taxes
Print View
Print This Page
Address: 124 E 34 ST
Parcel: 18053053011900
Parcel Profile
Address
124 | E | 34 | ST
Street Status
PAVED | SIDEWALK
School District
CITY OF ERIE SCHOOL
Acreage
0.0867
Classification
R
Land Use Code
SINGLE FAMILY
Legal Description
124 E 34 ST 42.9XIRR
Square Feet
1400
Topo
LEVEL
Utility
ALL PUBLIC
Zoning
Please contact your municipal zoning officer
Deed Book
0916
Deed Page
2144
2026 Tax Values
Land Value / Taxable
16,000 / 16,000.00
Building Value / Taxable
47,700 / 47,700.00
Total Value / Taxable
63,700 / 63,700.00
Clean & Green
Inactive
Homestead Status
Active
Farmstead Status
Inactive
Lerta Amount
0
Lerta Expiration Year
0
Residential Data
Card 1
Style
OLD STYLE
Basement
FULL
Year Built
1925
Exterior Wall
ALUMINUM/VINYL
Total Living Area
1400
Full Baths
2
Half Baths
0
Fuel Type
GAS
Heating
CENTRAL
Heating System
FORCED AIR
Stories
1.5
Total Bedrooms
3
Total Family Rooms
0
Total Rooms
7
Fireplaces
0
Other Buildings & Yards
No OBY Data Found
Sales History
Sale Date
Type
Price
Book / Page
Other Info
9/4/2002
LAND & BUILDING
66500
0916 / 2144
12/13/1957
0
0768 / 0386
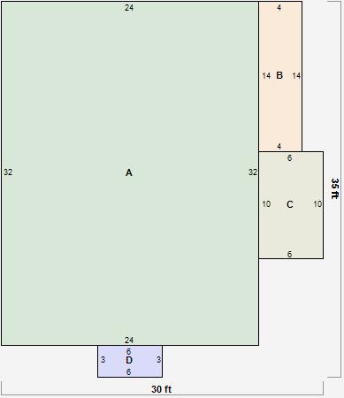
Parcel Sketches
Residential Card 1
A
MAIN
768 square feet
B
UNFIN BSMT BASEMENT UNFINISHED 1S FR ONE STORY FRAME
56 square feet
C
EFP ENCL FRAME PORCH
60 square feet
D
MA STOOP/TERR MAS STOOP
18 square feet
Parcel Images
Please note:
this tab is for informational purposes only and may not show all delinquencies, see the Taxes tab for more accurate delinquent taxes due.