Elected Officials
Courts
Departments
Initiatives
Open Government
About
Login / Register
Home
/
Property & Tax Records
/
Property Records
/
Property & Tax Search
/
Parcel Profile
/
Print View
Search for Another Parcel
Parcel Profile
Historical Card
Sketches
Photos
Tax Map
Taxes
Print View
Print This Page
Address: 122 E 36 ST
Parcel: 18053054012400
Parcel Profile
Address
122 | E | 36 | ST
Street Status
PAVED | SIDEWALK
School District
CITY OF ERIE SCHOOL
Acreage
0.1061
Classification
R
Land Use Code
SINGLE FAMILY
Legal Description
122 E 36 ST 42 X 110
Square Feet
1129
Topo
LEVEL
Utility
ALL PUBLIC
Zoning
Please contact your municipal zoning officer
Deed Book
2017
Deed Page
017275
2026 Tax Values
Land Value / Taxable
17,000 / 17,000.00
Building Value / Taxable
81,220 / 81,220.00
Total Value / Taxable
98,220 / 98,220.00
Clean & Green
Inactive
Homestead Status
Active
Farmstead Status
Inactive
Lerta Amount
0
Lerta Expiration Year
0
Residential Data
Card 1
Style
CONVENTIONAL
Basement
FULL
Year Built
1938
Exterior Wall
BRICK
Total Living Area
1129
Full Baths
1
Half Baths
0
Fuel Type
GAS
Heating
CENTRAL
Heating System
HOT WATER
Stories
1.0
Total Bedrooms
3
Total Family Rooms
0
Total Rooms
6
Fireplaces
1
Other Buildings & Yards
No OBY Data Found
Sales History
Sale Date
Type
Price
Book / Page
Other Info
8/10/2017
LAND & BUILDING
103000
2017 / 017275
DEED
6/1/2009
LAND & BUILDING
100000
1565 / 1143
DEED
9/12/1994
0
0353 / 1571
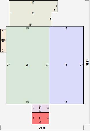
Parcel Sketches
Residential Card 1
A
MAIN
405 square feet
B
UNFIN BSMT BASEMENT UNFINISHED MABAY MASONRY BAY
16 square feet
C
UNFIN BSMT BASEMENT UNFINISHED 1SMAS MASONRY
143 square feet
D
MG/BG MASONRY/BRICK GARAGE 1SMAS MASONRY
324 square feet
E
1SMAS MASONRY
18 square feet
F
MA STOOP/TERR MAS STOOP
24 square feet
Parcel Images
Please note:
this tab is for informational purposes only and may not show all delinquencies, see the Taxes tab for more accurate delinquent taxes due.