Elected Officials
Courts
Departments
Initiatives
Open Government
About
Login / Register
Home
/
Property & Tax Records
/
Property Records
/
Property & Tax Search
/
Parcel Profile
/
Print View
Search for Another Parcel
Parcel Profile
Historical Card
Sketches
Photos
Tax Map
Taxes
Print View
Print This Page
Address: 167 E 34 ST
Parcel: 18053054020400
Parcel Profile
Address
167 | E | 34 | ST
Street Status
PAVED | SIDEWALK
School District
CITY OF ERIE SCHOOL
Acreage
0.0820
Classification
R
Land Use Code
SINGLE FAMILY
Legal Description
167 E 34 ST 35 X 102.3
Square Feet
1179
Topo
LEVEL
Utility
ALL PUBLIC
Zoning
Please contact your municipal zoning officer
Deed Book
0335
Deed Page
1781
2026 Tax Values
Land Value / Taxable
15,700 / 15,700.00
Building Value / Taxable
62,980 / 62,980.00
Total Value / Taxable
78,680 / 78,680.00
Clean & Green
Inactive
Homestead Status
Inactive
Farmstead Status
Inactive
Lerta Amount
0
Lerta Expiration Year
0
Residential Data
Card 1
Style
CAPE
Basement
FULL
Year Built
1931
Exterior Wall
BRICK
Total Living Area
1179
Full Baths
1
Half Baths
0
Fuel Type
GAS
Heating
CENTRAL A/C
Heating System
FORCED AIR
Stories
1.0
Total Bedrooms
2
Total Family Rooms
0
Total Rooms
5
Fireplaces
0
Other Buildings & Yards
Description
Built
Width
Length
Area
FRAME OR CB DETACHED GARAGE
1931
12
20
240
Sales History
Sale Date
Type
Price
Book / Page
Other Info
5/20/1994
0
0335 / 1781
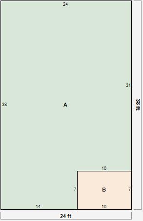
Parcel Sketches
Residential Card 1
A
MAIN
842 square feet
B
OMP OPEN MASONRY PORCH
70 square feet
Parcel Images
Please note:
this tab is for informational purposes only and may not show all delinquencies, see the Taxes tab for more accurate delinquent taxes due.