Elected Officials
Courts
Departments
Initiatives
Open Government
About
Login / Register
Home
/
Property & Tax Records
/
Property Records
/
Property & Tax Search
/
Parcel Profile
/
Print View
Search for Another Parcel
Parcel Profile
Historical Card
Sketches
Photos
Tax Map
Taxes
Print View
Print This Page
Address: 146 E 38 ST BLVD
Parcel: 18053055013000
Parcel Profile
Address
146 | E | 38 ST | BLVD
Street Status
PAVED | SIDEWALK
School District
CITY OF ERIE SCHOOL
Acreage
0.1515
Classification
R
Land Use Code
SINGLE FAMILY
Legal Description
146 E 38 ST BLVD 55X120
Square Feet
1774
Topo
LEVEL
Utility
ALL PUBLIC
Zoning
Please contact your municipal zoning officer
Deed Book
2016
Deed Page
013364
2026 Tax Values
Land Value / Taxable
18,000 / 18,000.00
Building Value / Taxable
76,370 / 76,370.00
Total Value / Taxable
94,370 / 94,370.00
Clean & Green
Inactive
Homestead Status
Inactive
Farmstead Status
Inactive
Lerta Amount
0
Lerta Expiration Year
0
Residential Data
Card 1
Style
OLD STYLE
Basement
PART
Year Built
1953
Exterior Wall
ALUMINUM/VINYL
Total Living Area
1774
Full Baths
1
Half Baths
1
Fuel Type
GAS
Heating
CENTRAL A/C
Heating System
FORCED AIR
Stories
1.5
Total Bedrooms
3
Total Family Rooms
0
Total Rooms
4
Fireplaces
1
Other Buildings & Yards
Description
Built
Width
Length
Area
FRAME OR CB DETACHED GARAGE
1921
18
20
360
FRAME UTILITY SHED
1921
8
10
80
Sales History
Sale Date
Type
Price
Book / Page
Other Info
6/28/2016
LAND & BUILDING
46000
2016 / 013364
SPECIAL WARRANTY DEED
4/8/2016
LAND & BUILDING
3290
2016 / 006843
SHERIFF'S DED
5/7/1999
LAND & BUILDING
0
634 / 2143
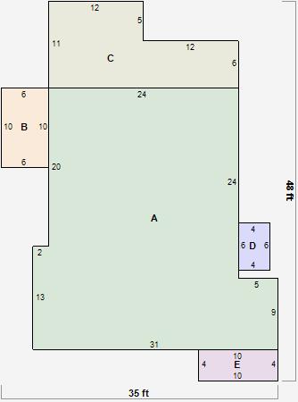
Parcel Sketches
Residential Card 1
A
MAIN
863 square feet
B
1S FR ONE STORY FRAME
60 square feet
C
1S FR ONE STORY FRAME
204 square feet
D
MA_PT CONC/MAS PATIO CANPY CANOPY
24 square feet
E
OFP OPEN FRAME PORCH
40 square feet
Parcel Images
Please note:
this tab is for informational purposes only and may not show all delinquencies, see the Taxes tab for more accurate delinquent taxes due.