Elected Officials
Courts
Departments
Initiatives
Open Government
About
Login / Register
Home
/
Property & Tax Records
/
Property Records
/
Property & Tax Search
/
Parcel Profile
/
Print View
Search for Another Parcel
Parcel Profile
Historical Card
Sketches
Photos
Tax Map
Taxes
Print View
Print This Page
Address: 3844 SUNSET BLVD
Parcel: 18053061010100
Parcel Profile
Address
3844 | SUNSET | BLVD
Street Status
PAVED
School District
CITY OF ERIE SCHOOL
Acreage
0.2479
Classification
R
Land Use Code
SINGLE FAMILY
Legal Description
3844 SUNSET BLVD 80X135
Square Feet
1440
Topo
ROLLING
Utility
ALL PUBLIC
Zoning
Please contact your municipal zoning officer
Deed Book
2014
Deed Page
006699
2026 Tax Values
Land Value / Taxable
20,700 / 20,700.00
Building Value / Taxable
69,500 / 69,500.00
Total Value / Taxable
90,200 / 90,200.00
Clean & Green
Inactive
Homestead Status
Inactive
Farmstead Status
Inactive
Lerta Amount
0
Lerta Expiration Year
0
Residential Data
Card 1
Style
CAPE
Basement
FULL
Year Built
1936
Exterior Wall
FRAME
Total Living Area
1440
Full Baths
1
Half Baths
1
Fuel Type
GAS
Heating
CENTRAL
Heating System
HOT WATER
Stories
2.0
Total Bedrooms
3
Total Family Rooms
0
Total Rooms
6
Fireplaces
1
Other Buildings & Yards
Description
Built
Width
Length
Area
FRAME OR CB DETACHED GARAGE
1936
12
20
240
Sales History
Sale Date
Type
Price
Book / Page
Other Info
4/10/2014
LAND & BUILDING
71500
2014 / 006699
WARRANTY/SURVIVORSHIP DEED
8/15/2006
LAND & BUILDING
94000
1352 / 2228
DEED
7/5/2000
LAND & BUILDING
80000
713 / 544
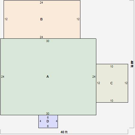
Parcel Sketches
Residential Card 1
A
MAIN
720 square feet
B
WDDCK WOOD DECKS
288 square feet
C
EFP ENCL FRAME PORCH
120 square feet
D
MA STOOP/TERR MAS STOOP
24 square feet
Parcel Images
Please note:
this tab is for informational purposes only and may not show all delinquencies, see the Taxes tab for more accurate delinquent taxes due.