Elected Officials
Courts
Departments
Initiatives
Open Government
About
Login / Register
Home
/
Property & Tax Records
/
Property Records
/
Property & Tax Search
/
Parcel Profile
/
Print View
Search for Another Parcel
Parcel Profile
Historical Card
Sketches
Photos
Tax Map
Taxes
Print View
Print This Page
Address: 244 E 34 ST
Parcel: 18053063023200
Parcel Profile
Address
244 | E | 34 | ST
Street Status
PAVED | SIDEWALK
School District
CITY OF ERIE SCHOOL
Acreage
0.1069
Classification
R
Land Use Code
SINGLE FAMILY
Legal Description
244 E 34 ST 49X95
Square Feet
1160
Topo
LEVEL
Utility
ALL PUBLIC
Zoning
Please contact your municipal zoning officer
Deed Book
2025
Deed Page
001770
2026 Tax Values
Land Value / Taxable
17,000 / 17,000.00
Building Value / Taxable
53,000 / 53,000.00
Total Value / Taxable
70,000 / 70,000.00
Clean & Green
Inactive
Homestead Status
Active
Farmstead Status
Inactive
Lerta Amount
0
Lerta Expiration Year
0
Residential Data
Card 1
Style
RANCH
Basement
FULL
Year Built
1958
Exterior Wall
FRAME
Total Living Area
1160
Full Baths
1
Half Baths
0
Fuel Type
GAS
Heating
CENTRAL A/C
Heating System
FORCED AIR
Stories
1.0
Total Bedrooms
3
Total Family Rooms
0
Total Rooms
5
Fireplaces
0
Other Buildings & Yards
No OBY Data Found
Sales History
Sale Date
Type
Price
Book / Page
Other Info
2/4/2025
LAND & BUILDING
114500
2025 / 001770
FIDUCIARY DEED
5/3/2021
LAND & BUILDING
82500
2021 / 010779
DEED
4/4/2016
LAND & BUILDING
37000
2016 / 006494
DEED
9/22/2008
LAND & BUILDING
40500
1521 / 2157
QUIT CLAIM DEED
5/12/2008
LAND & BUILDING
40500
1494 / 0874
SPECIAL WARRANTY DEED
4/26/2007
LAND & BUILDING
0
1411 / 0701
DEED
7/14/1997
0
0508 / 1274
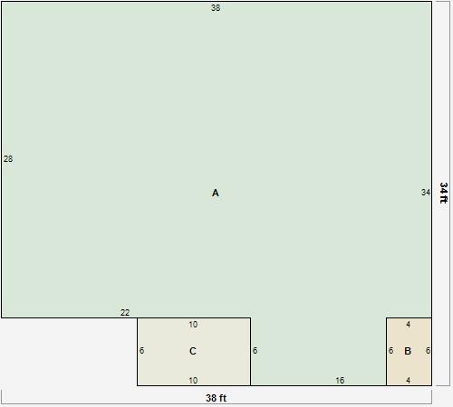
Parcel Sketches
Residential Card 1
A
MAIN
1160 square feet
B
OFP OPEN FRAME PORCH
24 square feet
C
OFP OPEN FRAME PORCH
60 square feet
Parcel Images
Please note:
this tab is for informational purposes only and may not show all delinquencies, see the Taxes tab for more accurate delinquent taxes due.