Elected Officials
Courts
Departments
Initiatives
Open Government
About
Login / Register
Home
/
Property & Tax Records
/
Property Records
/
Property & Tax Search
/
Parcel Profile
/
Print View
Search for Another Parcel
Parcel Profile
Historical Card
Sketches
Photos
Tax Map
Taxes
Print View
Print This Page
Address: 3305 HOLLAND ST
Parcel: 18053063032100
Parcel Profile
Address
3305 | HOLLAND | ST
Street Status
PAVED | SIDEWALK
School District
CITY OF ERIE SCHOOL
Acreage
0.1102
Classification
R
Land Use Code
SINGLE FAMILY
Legal Description
3305 HOLLAND ST 40 X 120 | 0.1102 AC
Square Feet
1570
Topo
LEVEL
Utility
ALL PUBLIC
Zoning
Please contact your municipal zoning officer
Deed Book
2023
Deed Page
011178
2026 Tax Values
Land Value / Taxable
17,200 / 17,200.00
Building Value / Taxable
73,520 / 73,520.00
Total Value / Taxable
90,720 / 90,720.00
Clean & Green
Inactive
Homestead Status
Inactive
Farmstead Status
Inactive
Lerta Amount
0
Lerta Expiration Year
0
Residential Data
Card 1
Style
CAPE
Basement
FULL
Year Built
1928
Exterior Wall
BRICK
Total Living Area
1570
Full Baths
1
Half Baths
0
Fuel Type
GAS
Heating
CENTRAL
Heating System
FORCED AIR
Stories
1.0
Total Bedrooms
3
Total Family Rooms
0
Total Rooms
6
Fireplaces
1
Other Buildings & Yards
Description
Built
Width
Length
Area
FRAME OR CB DETACHED GARAGE
1978
14
24
336
Sales History
Sale Date
Type
Price
Book / Page
Other Info
7/12/2023
126500
2023 / 011178
CORRECTIVE DEED
5/26/2023
0
2023 / 08171
SPECIAL WARRANTY DEED
1/7/2019
LAND & BUILDING
93500
2019 / 000407
WARRANTY/SURVIVORSHIP DEED
6/29/2007
LAND & BUILDING
90000
1427 / 2194
WARRANTY/SURVIVORSHIP DEED
4/6/2006
LAND & BUILDING
55000
1317 / 2210
DEED
11/10/2005
LAND & BUILDING
0
1286 / 0413
SHERIFF'S DED
5/27/1988
0
0051 / 1436
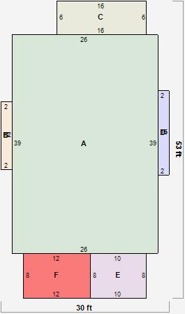
Parcel Sketches
Residential Card 1
A
MAIN
1014 square feet
B
UNFIN BSMT BASEMENT UNFINISHED MABAY MASONRY BAY
24 square feet
C
UNFIN BSMT BASEMENT UNFINISHED 1S FR ONE STORY FRAME
96 square feet
D
UNFIN BSMT BASEMENT UNFINISHED MABAY MASONRY BAY
30 square feet
E
OMP OPEN MASONRY PORCH
80 square feet
F
EMP ENCL MASONRY PORCH
96 square feet
Parcel Images
Please note:
this tab is for informational purposes only and may not show all delinquencies, see the Taxes tab for more accurate delinquent taxes due.