Elected Officials
Courts
Departments
Initiatives
Open Government
About
Login / Register
Home
/
Property & Tax Records
/
Property Records
/
Property & Tax Search
/
Parcel Profile
/
Print View
Search for Another Parcel
Parcel Profile
Historical Card
Sketches
Photos
Tax Map
Taxes
Print View
Print This Page
Address: 326 E 33 ST
Parcel: 18053064030600
Parcel Profile
Address
326 | E | 33 | ST
Street Status
PAVED | SIDEWALK
School District
CITY OF ERIE SCHOOL
Acreage
0.1452
Classification
R
Land Use Code
TWO FAMILY
Legal Description
326 E 33 ST 46.86X135
Square Feet
1721
Topo
LEVEL
Utility
ALL PUBLIC
Zoning
Please contact your municipal zoning officer
Deed Book
0119
Deed Page
0533
2026 Tax Values
Land Value / Taxable
17,900 / 17,900.00
Building Value / Taxable
37,290 / 37,290.00
Total Value / Taxable
55,190 / 55,190.00
Clean & Green
Inactive
Homestead Status
Active
Farmstead Status
Inactive
Lerta Amount
0
Lerta Expiration Year
0
Residential Data
Card 1
Style
OLD STYLE
Basement
FULL
Year Built
1900
Exterior Wall
COMPOSITION
Total Living Area
1721
Full Baths
2
Half Baths
0
Fuel Type
GAS
Heating
CENTRAL
Heating System
FORCED AIR
Stories
1.5
Total Bedrooms
4
Total Family Rooms
0
Total Rooms
10
Fireplaces
0
Other Buildings & Yards
Description
Built
Width
Length
Area
FRAME OR CB DETACHED GARAGE
1997
18
24
432
Sales History
Sale Date
Type
Price
Book / Page
Other Info
4/19/1990
0
0119 / 0533
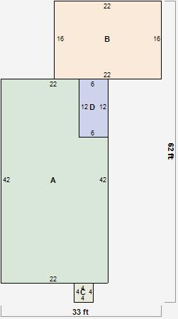
Parcel Sketches
Residential Card 1
A
MAIN
924 square feet
B
MA_PT CONC/MAS PATIO
352 square feet
C
UNFIN BSMT BASEMENT UNFINISHED 1S FR ONE STORY FRAME 1S FR ONE STORY FRAME
16 square feet
D
OFP OPEN FRAME PORCH 1S FR ONE STORY FRAME
72 square feet
Parcel Images