Elected Officials
Courts
Departments
Initiatives
Open Government
About
Login / Register
Home
/
Property & Tax Records
/
Property Records
/
Property & Tax Search
/
Parcel Profile
/
Print View
Search for Another Parcel
Parcel Profile
Historical Card
Sketches
Photos
Tax Map
Taxes
Print View
Print This Page
Address: 3833 SUNSET BLVD
Parcel: 18053066021700
Parcel Profile
Address
3833 | SUNSET | BLVD
Street Status
PAVED | SIDEWALK
School District
CITY OF ERIE SCHOOL
Acreage
0.2755
Classification
R
Land Use Code
SINGLE FAMILY
Legal Description
3833 SUNSET BLVD 80 X 150
Square Feet
1847
Topo
LEVEL
Utility
ALL PUBLIC
Zoning
Please contact your municipal zoning officer
Deed Book
2021
Deed Page
010583
2026 Tax Values
Land Value / Taxable
21,000 / 21,000.00
Building Value / Taxable
89,690 / 89,690.00
Total Value / Taxable
110,690 / 110,690.00
Clean & Green
Inactive
Homestead Status
Active
Farmstead Status
Inactive
Lerta Amount
0
Lerta Expiration Year
0
Residential Data
Card 1
Style
CAPE
Basement
FULL
Year Built
1948
Exterior Wall
BRICK
Total Living Area
1847
Full Baths
2
Half Baths
0
Fuel Type
GAS
Heating
CENTRAL A/C
Heating System
FORCED AIR
Stories
1.0
Total Bedrooms
4
Total Family Rooms
0
Total Rooms
7
Fireplaces
2
Other Buildings & Yards
No OBY Data Found
Sales History
Sale Date
Type
Price
Book / Page
Other Info
4/30/2021
LAND & BUILDING
0
2021 / 010583
DEED
4/28/2006
LAND & BUILDING
109900
1323 / 0995
DEED
4/28/2006
LAND & BUILDING
105900
1323 / 0991
SPECIAL WARRANTY DEED
11/17/1998
0
0600 / 1243
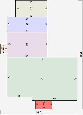
Parcel Sketches
Residential Card 1
A
MAIN
1062 square feet
B
EFP ENCL FRAME PORCH
24 square feet
C
WDDCK WOOD DECKS
190 square feet
D
EFP ENCL FRAME PORCH
216 square feet
E
UNFIN BSMT BASEMENT UNFINISHED 1S FR ONE STORY FRAME
360 square feet
F
MA_PT CONC/MAS PATIO
50 square feet
Parcel Images
Please note:
this tab is for informational purposes only and may not show all delinquencies, see the Taxes tab for more accurate delinquent taxes due.