Address: 501 E 38 ST   Parcel: 18053072010000
Parcel Profile
Address501 | E | 38 | ST
Street StatusPAVED
School DistrictCITY OF ERIE SCHOOL
Acreage46.8300
ClassificationE
Land Use CodeEXEMPT SCHOOLS
Legal Description501 E 38 ST BLVD 46.83 AC CAL
Square Feet221987
TopoLEVEL | ROLLING
UtilityALL PUBLIC
ZoningPlease contact your municipal zoning officer
Deed Book1451
Deed Page1407
2026 Tax Values
Land Value / Taxable1,639,100 / 1,639,100.00
Building Value / Taxable62,659,400 / 57,308,350.00
Total Value / Taxable64,298,500 / 58,947,450.00
Clean & GreenInactive
Homestead StatusInactive
Farmstead StatusInactive
Lerta Amount0
Lerta Expiration Year0
Commercial Data
Card 1APARTMENTS - GARDEN
 Business Living Area - 31764
 Year Built - 1973
 Improvement Name - MERCY APTS OLD MAIN EGAN HALL
 Value - 676080
Card 2SKATING RINK
 Business Living Area - 43932
 Year Built - 1993
 Improvement Name - ICE RINK
 Value - 1414320
Card 3COLLEGES & UNIVERSITY
 Business Living Area - 21913
 Year Built - 1991
 Improvement Name - STUDENT UNION HAMMER MILL
 Value - 857970
Card 4RESEARCH & DEVELOPMENT
 Business Living Area - 57366
 Year Built - 2002
 Improvement Name - AUDREY HIRT ACADEMIC CENTER
 Value - 6037300
Card 7APARTMENTS - GARDEN
 Business Living Area - 67012
 Year Built - 1987
 Improvement Name - PCL 100.95 APARTMENTS
 Value - 2110880
Other Buildings & Yards
DescriptionBuiltWidthLengthArea
 CHURCH 1933 0 0 6278
 CHURCH 1933 0 0 6278
 COLLEGE CLASSROOM 1926 0 0 6784
 COLLEGE CLASSROOM 1926 0 0 23360
 DORMITORY 1926 0 0 17550
 DORMITORY 1926 0 0 54565
 COLLEGE CLASSROOM 1988 0 0 3585
 COLLEGE CLASSROOM 1988 0 0 3585
 DORMITORY 1988 0 0 3868
 DORMITORY 1988 0 0 7736
 COLLEGE CLASSROOM 1953 0 0 5867
 COLLEGE CLASSROOM 1953 0 0 17601
 LIBRARY 1971 0 0 17069
 LIBRARY 1971 0 0 19613
 AUDITORIUM 1953 0 0 5157
 AUDITORIUM 1953 0 0 5157
 DORMITORY 1959 0 0 10400
 DORMITORY 1959 0 0 28490
 COLLEGE CLASSROOM 1968 0 0 21035
 COLLEGE CLASSROOM 1968 0 0 77559
 COLLEGE CLASSROOM 1988 0 0 36122
 DORMITORY 1988 0 0 21533
 DORMITORY 1988 0 0 39370
 COLLEGE GYMNASIUM 1971 0 0 65797
 PAVING ASPHALT PARKING 2002 40 120 4800
 COLLEGE CLASSROOM 1989 0 0 6200
 GAZEBO 1991 0 0 128
 FENCE CHAIN LINK 1980 6 1200 7200
 PAVING CONCRETE AVERAGE 1950 0 0 104000
 PAVING ASPHALT PARKING 1950 0 0 122000
 PAVING LIGHTED 1970 0 0 300000
 FRAME UTILITY SHED 1980 9 31 279
 CANOPY, ROOF/SLAB 1953 9 50 450
 CANOPY ONLY 1964 20 20 400
 FRAME UTILITY SHED 1964 12 12 144
 CANOPY, ROOF/SLAB 1988 14 22 308
 CANOPY, ROOF/SLAB 1971 0 0 456
 DORMITORY 2010 0 0 102342
Sales History
Sale DateTypePriceBook / PageOther Info
10/3/2007LAND & BUILDING01451 / 1407WARRANTY/SURVIVORSHIP DEED
10/22/1993 00299 / 0117 



Parcel Sketches

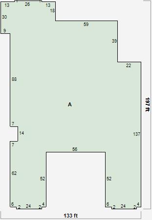
Commercial Card 1

Commercial Card 1
AMAIN2592 square feet
BMAIN864 square feet
CMAIN3566 square feet
DMAIN3566 square feet

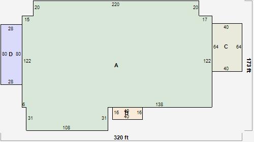
Commercial Card 2

Commercial Card 2
AMAIN38492 square feet
BMAIN640 square feet
CMAIN2560 square feet
DMAIN2240 square feet

Commercial Card 3

Commercial Card 3
AMAIN7595 square feet
BMAIN8473 square feet
CMAIN5845 square feet

Commercial Card 4

Commercial Card 4
AMAIN19122 square feet
BMAIN19122 square feet
CMAIN19122 square feet

Commercial Card 7

Commercial Card 7
AMAIN7134 square feet
BMAIN1870 square feet
CMAIN8694 square feet
DMAIN8694 square feet
EMAIN8694 square feet
FMAIN11246 square feet
GMAIN10340 square feet
HMAIN10340 square feet

Parcel Images

parcel photoparcel photoparcel photoparcel photoparcel photoparcel photoparcel photoparcel photoparcel photoparcel photoparcel photoparcel photoparcel photoparcel photoparcel photoparcel photoparcel photoparcel photo
Please note: this tab is for informational purposes only and may not show all delinquencies, see the Taxes tab for more accurate delinquent taxes due.