Elected Officials
Courts
Departments
Initiatives
Open Government
About
Login / Register
Home
/
Property & Tax Records
/
Property Records
/
Property & Tax Search
/
Parcel Profile
/
Print View
Search for Another Parcel
Parcel Profile
Historical Card
Sketches
Photos
Tax Map
Taxes
Print View
Print This Page
Address: 3253 PINE AVE
Parcel: 18053074030200
Parcel Profile
Address
3253 | PINE | AVE
Street Status
PAVED | SIDEWALK
School District
CITY OF ERIE SCHOOL
Acreage
0.1555
Classification
R
Land Use Code
SINGLE FAMILY
Legal Description
3253 PINE AVE 52XIRR
Square Feet
1600
Topo
LEVEL
Utility
ALL PUBLIC
Zoning
Please contact your municipal zoning officer
Deed Book
2022
Deed Page
015903
2026 Tax Values
Land Value / Taxable
18,000 / 18,000.00
Building Value / Taxable
47,700 / 47,700.00
Total Value / Taxable
65,700 / 65,700.00
Clean & Green
Inactive
Homestead Status
Active
Farmstead Status
Inactive
Lerta Amount
0
Lerta Expiration Year
0
Residential Data
Card 1
Style
CAPE
Basement
FULL
Year Built
1890
Exterior Wall
COMPOSITION
Total Living Area
1600
Full Baths
1
Half Baths
0
Fuel Type
GAS
Heating
CENTRAL
Heating System
FORCED AIR
Stories
1.0
Total Bedrooms
4
Total Family Rooms
0
Total Rooms
9
Fireplaces
0
Other Buildings & Yards
No OBY Data Found
Sales History
Sale Date
Type
Price
Book / Page
Other Info
7/22/2022
LAND & BUILDING
180000
2022 / 015903
SPECIAL WARRANTY DEED
8/16/2005
LAND & BUILDING
0
1261 / 0330
WARRANTY/SURVIVORSHIP DEED
7/21/2005
LAND & BUILDING
175000
1253 / 0822
WARRANTY/SURVIVORSHIP DEED
2/11/1999
0
0617 / 1442
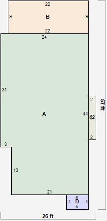
Parcel Sketches
Residential Card 1
A
MAIN
1017 square feet
B
EFP ENCL FRAME PORCH
198 square feet
C
UNFIN BSMT BASEMENT UNFINISHED FRBAY FRAME BAY
24 square feet
D
OFP OPEN FRAME PORCH
24 square feet
Parcel Images
Please note:
this tab is for informational purposes only and may not show all delinquencies, see the Taxes tab for more accurate delinquent taxes due.