Elected Officials
Courts
Departments
Initiatives
Open Government
About
Login / Register
Home
/
Property & Tax Records
/
Property Records
/
Property & Tax Search
/
Parcel Profile
/
Print View
Search for Another Parcel
Parcel Profile
Historical Card
Sketches
Photos
Tax Map
Taxes
Print View
Print This Page
Address: 823 E 33 ST
Parcel: 18053088020900
Parcel Profile
Address
823 | E | 33 | ST
Street Status
PAVED
School District
CITY OF ERIE SCHOOL
Acreage
0.1240
Classification
R
Land Use Code
SINGLE FAMILY
Legal Description
823 E 33 ST 40 X 135
Square Feet
936
Topo
LEVEL
Utility
ALL PUBLIC
Zoning
Please contact your municipal zoning officer
Deed Book
2022
Deed Page
002507
2026 Tax Values
Land Value / Taxable
17,500 / 17,500.00
Building Value / Taxable
56,200 / 56,200.00
Total Value / Taxable
73,700 / 73,700.00
Clean & Green
Inactive
Homestead Status
Inactive
Farmstead Status
Inactive
Lerta Amount
0
Lerta Expiration Year
0
Residential Data
Card 1
Style
RANCH
Basement
FULL
Year Built
1953
Exterior Wall
ALUMINUM/VINYL
Total Living Area
936
Full Baths
1
Half Baths
0
Fuel Type
GAS
Heating
CENTRAL A/C
Heating System
FORCED AIR
Stories
1.0
Total Bedrooms
3
Total Family Rooms
0
Total Rooms
5
Fireplaces
0
Other Buildings & Yards
No OBY Data Found
Sales History
Sale Date
Type
Price
Book / Page
Other Info
2/7/2022
LAND & BUILDING
78000
2022 / 002507
SPECIAL WARRANTY DEED
11/25/2003
LAND & BUILDING
65500
1089 / 1852
DEED
3/21/1953
0
0645 / 0497
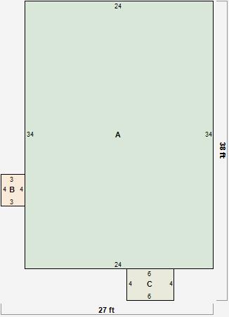
Parcel Sketches
Residential Card 1
A
MAIN
816 square feet
B
MA STOOP/TERR MAS STOOP
12 square feet
C
EFP ENCL FRAME PORCH
24 square feet
Parcel Images
Please note:
this tab is for informational purposes only and may not show all delinquencies, see the Taxes tab for more accurate delinquent taxes due.