Address: 2124 PEACH ST   Parcel: 19060002010000
Parcel Profile
Address2124 | PEACH | ST
Street StatusPAVED | SIDEWALK
School DistrictCITY OF ERIE SCHOOL
Acreage0.0754
ClassificationC
Land Use CodeRESTAURANTS, STORES (RETAIL)
Legal Description2124 PEACH ST 51.5X63.75
Square Feet3472
TopoLEVEL
UtilityALL PUBLIC
ZoningPlease contact your municipal zoning officer
Deed Book1607
Deed Page0220
2026 Tax Values
Land Value / Taxable9,900 / 9,900.00
Building Value / Taxable30,600 / 30,600.00
Total Value / Taxable40,500 / 40,500.00
Clean & GreenInactive
Homestead StatusActive
Farmstead StatusInactive
Lerta Amount0
Lerta Expiration Year0
Commercial Data
Card 1RETAIL SINGLE OCCUP
 Business Living Area - 3472
 Year Built - 1949
 Improvement Name - LEVEY'S HARDWARE
 Value - 30590
Other Buildings & Yards
No OBY Data Found
Sales History
Sale DateTypePriceBook / PageOther Info
11/21/1985 01607 / 0220 



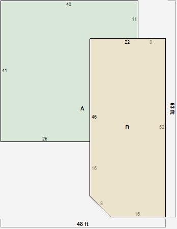
Parcel Sketches

Commercial Card 1

Commercial Card 1
AMAIN2346 square feet
BMAIN1126 square feet

Parcel Images

parcel photo