Elected Officials
Courts
Departments
Initiatives
Open Government
About
Login / Register
Home
/
Property & Tax Records
/
Property Records
/
Property & Tax Search
/
Parcel Profile
/
Print View
Search for Another Parcel
Parcel Profile
Historical Card
Sketches
Photos
Tax Map
Taxes
Print View
Print This Page
Address: 2008 PEACH ST
Parcel: 19060002020400
Parcel Profile
Address
2008 | PEACH | ST
Street Status
PAVED | SIDEWALK
School District
CITY OF ERIE SCHOOL
Acreage
0.0579
Classification
R
Land Use Code
SINGLE FAMILY
Legal Description
2008 PEACH ST 28X90
Square Feet
1632
Topo
LEVEL
Utility
ALL PUBLIC
Zoning
Please contact your municipal zoning officer
Deed Book
2023
Deed Page
015586
2026 Tax Values
Land Value / Taxable
8,500 / 8,500.00
Building Value / Taxable
23,900 / 23,900.00
Total Value / Taxable
32,400 / 32,400.00
Clean & Green
Inactive
Homestead Status
Active
Farmstead Status
Inactive
Lerta Amount
0
Lerta Expiration Year
0
Residential Data
Card 1
Style
OLD STYLE
Basement
FULL
Year Built
1902
Exterior Wall
BRICK
Total Living Area
1632
Full Baths
1
Half Baths
0
Fuel Type
GAS
Heating
CENTRAL
Heating System
FORCED AIR
Stories
2.0
Total Bedrooms
3
Total Family Rooms
0
Total Rooms
6
Fireplaces
0
Other Buildings & Yards
No OBY Data Found
Sales History
Sale Date
Type
Price
Book / Page
Other Info
9/15/2023
LAND & BUILDING
66000
2023 / 015586
SPECIAL WARRANTY DEED
3/18/2021
LAND & BUILDING
55000
2021 / 006375
SPECIAL WARRANTY DEED
9/30/2010
LAND & BUILDING
10000
2010 / 024179
SPECIAL WARRANTY DEED
12/29/1955
0
0723 / 0142
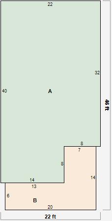
Parcel Sketches
Residential Card 1
A
MAIN
816 square feet
B
OFP OPEN FRAME PORCH
176 square feet
Parcel Images
Please note:
this tab is for informational purposes only and may not show all delinquencies, see the Taxes tab for more accurate delinquent taxes due.