Elected Officials
Courts
Departments
Initiatives
Open Government
About
Login / Register
Home
/
Property & Tax Records
/
Property Records
/
Property & Tax Search
/
Parcel Profile
/
Print View
Search for Another Parcel
Parcel Profile
Historical Card
Sketches
Photos
Tax Map
Taxes
Print View
Print This Page
Address: 2001 SASSAFRAS ST
Parcel: 19060002022100
Parcel Profile
Address
2001 | SASSAFRAS | ST
Street Status
PAVED | SIDEWALK
School District
CITY OF ERIE SCHOOL
Acreage
0.0468
Classification
R
Land Use Code
SINGLE FAMILY
Legal Description
2001 SASSAFRAS ST 34X60
Square Feet
1360
Topo
LEVEL
Utility
ALL PUBLIC
Zoning
Please contact your municipal zoning officer
Deed Book
0022
Deed Page
2109
2026 Tax Values
Land Value / Taxable
9,000 / 9,000.00
Building Value / Taxable
33,000 / 33,000.00
Total Value / Taxable
42,000 / 42,000.00
Clean & Green
Inactive
Homestead Status
Inactive
Farmstead Status
Inactive
Lerta Amount
0
Lerta Expiration Year
0
Residential Data
Card 1
Style
OLD STYLE
Basement
FULL
Year Built
1907
Exterior Wall
FRAME
Total Living Area
1360
Full Baths
1
Half Baths
0
Fuel Type
GAS
Heating
CENTRAL
Heating System
FORCED AIR
Stories
2.0
Total Bedrooms
3
Total Family Rooms
0
Total Rooms
6
Fireplaces
0
Other Buildings & Yards
No OBY Data Found
Sales History
Sale Date
Type
Price
Book / Page
Other Info
8/6/1987
0
0022 / 2109
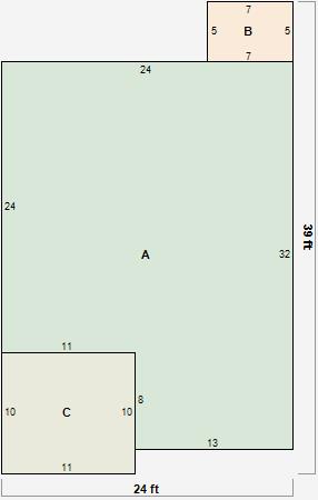
Parcel Sketches
Residential Card 1
A
MAIN
680 square feet
B
EFP ENCL FRAME PORCH
35 square feet
C
EFP ENCL FRAME PORCH
110 square feet
Parcel Images
Please note:
this tab is for informational purposes only and may not show all delinquencies, see the Taxes tab for more accurate delinquent taxes due.