Elected Officials
Courts
Departments
Initiatives
Open Government
About
Login / Register
Home
/
Property & Tax Records
/
Property Records
/
Property & Tax Search
/
Parcel Profile
/
Print View
Search for Another Parcel
Parcel Profile
Historical Card
Sketches
Photos
Tax Map
Taxes
Print View
Print This Page
Address: 2013 MYRTLE ST
Parcel: 19060006023300
Parcel Profile
Address
2013 | MYRTLE | ST
Street Status
PAVED | SIDEWALK
School District
CITY OF ERIE SCHOOL
Acreage
0.0445
Classification
R
Land Use Code
SINGLE FAMILY
Legal Description
2013 MYRTLE ST 38.75X50
Square Feet
1529
Topo
LEVEL
Utility
ALL PUBLIC
Zoning
Please contact your municipal zoning officer
Deed Book
2020
Deed Page
027426
2026 Tax Values
Land Value / Taxable
8,900 / 8,900.00
Building Value / Taxable
47,010 / 47,010.00
Total Value / Taxable
55,910 / 55,910.00
Clean & Green
Inactive
Homestead Status
Inactive
Farmstead Status
Inactive
Lerta Amount
0
Lerta Expiration Year
0
Residential Data
Card 1
Style
OLD STYLE
Basement
FULL
Year Built
1895
Exterior Wall
ALUMINUM/VINYL
Total Living Area
1529
Full Baths
1
Half Baths
0
Fuel Type
GAS
Heating
CENTRAL
Heating System
FORCED AIR
Stories
1.5
Total Bedrooms
3
Total Family Rooms
0
Total Rooms
6
Fireplaces
0
Other Buildings & Yards
No OBY Data Found
Sales History
Sale Date
Type
Price
Book / Page
Other Info
12/18/2020
LAND & BUILDING
68500
2020 / 027426
SPECIAL WARRANTY DEED
4/14/2020
LAND & BUILDING
0
2020 / 006618
SPECIAL WARRANTY DEED
11/25/2019
LAND & BUILDING
30500
2019 / 024389
SPECIAL WARRANTY DEED
11/2/2006
LAND & BUILDING
0
1373 / 0571
QUIT CLAIM DEED
5/6/2005
LAND & BUILDING
20000
1231 / 2274
DEED
8/5/2004
LAND & BUILDING
0
1161 / 0757
SHERIFF'S DED
3/30/1994
0
0326 / 1437
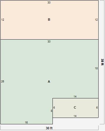
Parcel Sketches
Residential Card 1
A
MAIN
668 square feet
B
1S FR ONE STORY FRAME
360 square feet
C
OFP OPEN FRAME PORCH
84 square feet
Parcel Images
Please note:
this tab is for informational purposes only and may not show all delinquencies, see the Taxes tab for more accurate delinquent taxes due.