Address: 334 W 20 ST   Parcel: 19060009011700
Parcel Profile
Address334 | W | 20 | ST
Street StatusPAVED | SIDEWALK
School DistrictCITY OF ERIE SCHOOL
Acreage0.1278
ClassificationR
Land Use CodeTWO FAMILY
Legal Description334 W 20 ST 41.25X135
Square Feet1906
TopoLEVEL
UtilityALL PUBLIC
ZoningPlease contact your municipal zoning officer
Deed Book2016
Deed Page022942
2026 Tax Values
Land Value / Taxable11,200 / 11,200.00
Building Value / Taxable48,100 / 48,100.00
Total Value / Taxable59,300 / 59,300.00
Clean & GreenInactive
Homestead StatusInactive
Farmstead StatusInactive
Lerta Amount0
Lerta Expiration Year0
Residential Data
Card 1
     StyleOLD STYLE
     BasementFULL
     Year Built1897
     Exterior WallALUMINUM/VINYL
     Total Living Area1906
     Full Baths2
     Half Baths0
     Fuel TypeGAS
     HeatingCENTRAL
     Heating SystemFORCED AIR
     Stories2.0
     Total Bedrooms6
     Total Family Rooms0
     Total Rooms10
     Fireplaces0
Other Buildings & Yards
No OBY Data Found
Sales History
Sale DateTypePriceBook / PageOther Info
10/21/2016LAND & BUILDING165002016 / 022942SPECIAL WARRANTY DEED
3/4/2005LAND & BUILDING100001215 / 0567DEED
9/11/2000LAND & BUILDING7000725 / 1649 



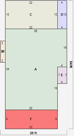
Parcel Sketches

Residential Card 1

Residential Card 1
AMAIN812 square feet
BUNFIN BSMT BASEMENT UNFINISHED FRBAY FRAME BAY 18 square feet
CUNFIN BSMT BASEMENT UNFINISHED 1S FR ONE STORY FRAME 264 square feet
D FR UT FRAME UTILITY BUILDING 48 square feet
E OFP OPEN FRAME PORCH 28 square feet
F OFP OPEN FRAME PORCH OFP OPEN FRAME PORCH 176 square feet

Parcel Images

parcel photo