Elected Officials
Courts
Departments
Initiatives
Open Government
About
Login / Register
Home
/
Property & Tax Records
/
Property Records
/
Property & Tax Search
/
Parcel Profile
/
Print View
Search for Another Parcel
Parcel Profile
Historical Card
Sketches
Photos
Tax Map
Taxes
Print View
Print This Page
Address: 2113 CHESTNUT ST
Parcel: 19060010011400
Parcel Profile
Address
2113 | CHESTNUT | ST
Street Status
PAVED | SIDEWALK
School District
CITY OF ERIE SCHOOL
Acreage
0.0845
Classification
R
Land Use Code
SINGLE FAMILY
Legal Description
2113 CHESTNUT ST 46 X 80
Square Feet
1616
Topo
LEVEL
Utility
ALL PUBLIC
Zoning
Please contact your municipal zoning officer
Deed Book
2014
Deed Page
011198
2026 Tax Values
Land Value / Taxable
10,500 / 10,500.00
Building Value / Taxable
74,720 / 74,720.00
Total Value / Taxable
85,220 / 85,220.00
Clean & Green
Inactive
Homestead Status
Inactive
Farmstead Status
Inactive
Lerta Amount
0
Lerta Expiration Year
0
Residential Data
Card 1
Style
OLD STYLE
Basement
FULL
Year Built
1917
Exterior Wall
BRICK
Total Living Area
1616
Full Baths
1
Half Baths
0
Fuel Type
GAS
Heating
CENTRAL
Heating System
FORCED AIR
Stories
2.0
Total Bedrooms
3
Total Family Rooms
0
Total Rooms
6
Fireplaces
1
Other Buildings & Yards
No OBY Data Found
Sales History
Sale Date
Type
Price
Book / Page
Other Info
6/6/2014
LAND & BUILDING
32000
2014 / 011198
DEED
1/7/1976
0
1192 / 0003
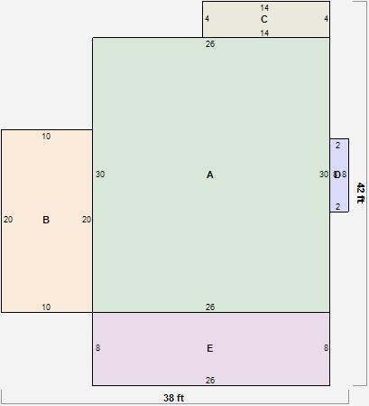
Parcel Sketches
Residential Card 1
A
MAIN
780 square feet
B
MG/BG MASONRY/BRICK GARAGE
200 square feet
C
1SMAS MASONRY
56 square feet
D
MA STOOP/TERR MAS STOOP
16 square feet
E
OMP OPEN MASONRY PORCH
208 square feet
Parcel Images
Please note:
this tab is for informational purposes only and may not show all delinquencies, see the Taxes tab for more accurate delinquent taxes due.