Elected Officials
Courts
Departments
Initiatives
Open Government
About
Login / Register
Home
/
Property & Tax Records
/
Property Records
/
Property & Tax Search
/
Parcel Profile
/
Print View
Search for Another Parcel
Parcel Profile
Historical Card
Sketches
Photos
Tax Map
Taxes
Print View
Print This Page
Address: 333 W 20 ST
Parcel: 19060010021300
Parcel Profile
Address
333 | W | 20 | ST
Street Status
PAVED | SIDEWALK
School District
CITY OF ERIE SCHOOL
Acreage
0.0932
Classification
R
Land Use Code
TWO FAMILY
Legal Description
333 W 20 ST 41.25 X 130
Square Feet
2112
Topo
LEVEL
Utility
ALL PUBLIC
Zoning
Please contact your municipal zoning officer
Deed Book
2013
Deed Page
003700
2026 Tax Values
Land Value / Taxable
10,800 / 10,800.00
Building Value / Taxable
46,500 / 46,500.00
Total Value / Taxable
57,300 / 57,300.00
Clean & Green
Inactive
Homestead Status
Inactive
Farmstead Status
Inactive
Lerta Amount
0.00
Lerta Expiration Year
2023
Residential Data
Card 1
Style
OLD STYLE
Basement
FULL
Year Built
1882
Exterior Wall
FRAME
Total Living Area
2112
Full Baths
2
Half Baths
0
Fuel Type
GAS
Heating
CENTRAL
Heating System
FORCED AIR
Stories
2.0
Total Bedrooms
5
Total Family Rooms
0
Total Rooms
10
Fireplaces
0
Other Buildings & Yards
Description
Built
Width
Length
Area
FRAME OR CB DETACHED GARAGE
1900
19
26
494
Sales History
Sale Date
Type
Price
Book / Page
Other Info
2/15/2013
LAND & BUILDING
8500
2013 / 003700
QUIT CLAIM DEED
3/2/2012
LAND & BUILDING
0
2012 / 005474
TAX DEED
5/7/2002
LAND & BUILDING
10000
878 / 93
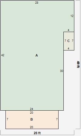
Parcel Sketches
Residential Card 1
A
MAIN
1056 square feet
B
OFP OPEN FRAME PORCH
140 square feet
C
EFP ENCL FRAME PORCH
28 square feet
Parcel Images
Please note:
this tab is for informational purposes only and may not show all delinquencies, see the Taxes tab for more accurate delinquent taxes due.