Elected Officials
Courts
Departments
Initiatives
Open Government
About
Login / Register
Home
/
Property & Tax Records
/
Property Records
/
Property & Tax Search
/
Parcel Profile
/
Print View
Search for Another Parcel
Parcel Profile
Historical Card
Sketches
Photos
Tax Map
Taxes
Print View
Print This Page
Address: 345 W 22 ST
Parcel: 19060011021400
Parcel Profile
Address
345 | W | 22 | ST
Street Status
PAVED | SIDEWALK
School District
CITY OF ERIE SCHOOL
Acreage
0.1148
Classification
R
Land Use Code
MULTIPLE DWELLINGS
Legal Description
345 W 22 ST 40 X 125
Square Feet
2770
Topo
LEVEL
Utility
ALL PUBLIC
Zoning
Please contact your municipal zoning officer
Deed Book
0463
Deed Page
0451
2026 Tax Values
Land Value / Taxable
11,100 / 11,100.00
Building Value / Taxable
68,700 / 68,700.00
Total Value / Taxable
79,800 / 79,800.00
Clean & Green
Inactive
Homestead Status
Inactive
Farmstead Status
Inactive
Lerta Amount
0
Lerta Expiration Year
0
Residential Data
Card 1
Style
OLD STYLE
Basement
FULL
Year Built
1907
Exterior Wall
ALUMINUM/VINYL
Total Living Area
672
Full Baths
1
Half Baths
0
Fuel Type
GAS
Heating
CENTRAL
Heating System
FORCED AIR
Stories
1.0
Total Bedrooms
2
Total Family Rooms
0
Total Rooms
5
Fireplaces
0
Card 2
Style
OLD STYLE
Basement
FULL
Year Built
1900
Exterior Wall
ALUMINUM/VINYL
Total Living Area
2098
Full Baths
2
Half Baths
0
Fuel Type
GAS
Heating
CENTRAL
Heating System
FORCED AIR
Stories
1.5
Total Bedrooms
4
Total Family Rooms
0
Total Rooms
8
Fireplaces
0
Other Buildings & Yards
No OBY Data Found
Sales History
Sale Date
Type
Price
Book / Page
Other Info
9/26/1996
0
0463 / 0451
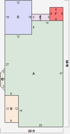
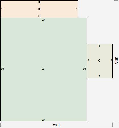
Parcel Sketches
Residential Card 1
A
MAIN
480 square feet
B
EFP ENCL FRAME PORCH
72 square feet
C
OFP OPEN FRAME PORCH
48 square feet
Residential Card 2
A
MAIN
1066 square feet
B
OFP OPEN FRAME PORCH
72 square feet
C
FRBAY FRAME BAY
16 square feet
D
1S FR ONE STORY FRAME
180 square feet
E
EFP ENCL FRAME PORCH
24 square feet
F
1S FR ONE STORY FRAME
36 square feet
Parcel Images