Elected Officials
Courts
Departments
Initiatives
Open Government
About
Login / Register
Home
/
Property & Tax Records
/
Property Records
/
Property & Tax Search
/
Parcel Profile
/
Print View
Search for Another Parcel
Parcel Profile
Historical Card
Sketches
Photos
Tax Map
Taxes
Print View
Print This Page
Address: 606 BROWN AVE
Parcel: 19060016012200
Parcel Profile
Address
606 | BROWN | AVE
Street Status
PAVED | SIDEWALK
School District
CITY OF ERIE SCHOOL
Acreage
0.0458
Classification
R
Land Use Code
SINGLE FAMILY
Legal Description
606 BROWN AVE 34.87 X IRR
Square Feet
1416
Topo
LEVEL
Utility
ALL PUBLIC
Zoning
Please contact your municipal zoning officer
Deed Book
2018
Deed Page
023331
2025 Tax Values
Land Value / Taxable
9,000 / 9,000.00
Building Value / Taxable
49,410 / 49,410.00
Total Value / Taxable
58,410 / 58,410.00
Clean & Green
Inactive
Homestead Status
Active
Farmstead Status
Inactive
Lerta Amount
0
Lerta Expiration Year
0
Residential Data
Card 1
Style
OLD STYLE
Basement
FULL
Year Built
1903
Exterior Wall
ALUMINUM/VINYL
Total Living Area
1416
Full Baths
1
Half Baths
1
Fuel Type
GAS
Heating
CENTRAL A/C
Heating System
FORCED AIR
Stories
2.0
Total Bedrooms
3
Total Family Rooms
0
Total Rooms
6
Fireplaces
0
Other Buildings & Yards
No OBY Data Found
Sales History
Sale Date
Type
Price
Book / Page
Other Info
11/9/2018
LAND & BUILDING
0
2018 / 023331
QUIT CLAIM DEED
9/8/1999
0
0660 / 2083
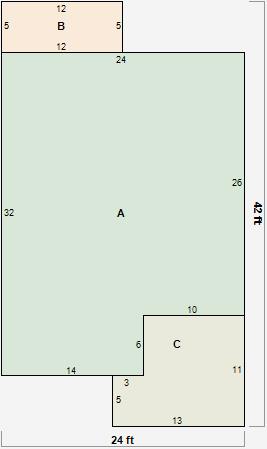
Parcel Sketches
Residential Card 1
A
MAIN
708 square feet
B
EFP ENCL FRAME PORCH
60 square feet
C
EFP ENCL FRAME PORCH
125 square feet
Parcel Images