Elected Officials
Courts
Departments
Initiatives
Open Government
About
Login / Register
Home
/
Property & Tax Records
/
Property Records
/
Property & Tax Search
/
Parcel Profile
/
Print View
Search for Another Parcel
Parcel Profile
Historical Card
Sketches
Photos
Tax Map
Taxes
Print View
Print This Page
Address: 2104 CHERRY ST
Parcel: 19060017010500
Parcel Profile
Address
2104 | CHERRY | ST
Street Status
PAVED | SIDEWALK
School District
CITY OF ERIE SCHOOL
Acreage
0.0826
Classification
R
Land Use Code
SINGLE FAMILY
Legal Description
2104 CHERRY ST 40X90
Square Feet
1632
Topo
LEVEL
Utility
ALL PUBLIC
Zoning
Please contact your municipal zoning officer
Deed Book
1031
Deed Page
1931
2026 Tax Values
Land Value / Taxable
10,400 / 10,400.00
Building Value / Taxable
45,830 / 45,830.00
Total Value / Taxable
56,230 / 56,230.00
Clean & Green
Inactive
Homestead Status
Active
Farmstead Status
Inactive
Lerta Amount
0
Lerta Expiration Year
0
Residential Data
Card 1
Style
OLD STYLE
Basement
FULL
Year Built
1898
Exterior Wall
COMPOSITION
Total Living Area
1632
Full Baths
1
Half Baths
1
Fuel Type
GAS
Heating
NON CENTRAL
Heating System
NONE
Stories
2.0
Total Bedrooms
3
Total Family Rooms
0
Total Rooms
7
Fireplaces
0
Other Buildings & Yards
No OBY Data Found
Sales History
Sale Date
Type
Price
Book / Page
Other Info
7/3/2003
LAND & BUILDING
37900
1031 / 1931
WARRANTY/SURVIVORSHIP DEED
4/9/2003
LAND & BUILDING
0
996 / 1567
AFFIDAVIT
2/20/1981
0
1412 / 0288
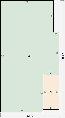
Parcel Sketches
Residential Card 1
A
MAIN
816 square feet
B
OFP OPEN FRAME PORCH
78 square feet
Parcel Images
Please note:
this tab is for informational purposes only and may not show all delinquencies, see the Taxes tab for more accurate delinquent taxes due.