Elected Officials
Courts
Departments
Initiatives
Open Government
About
Login / Register
Home
/
Property & Tax Records
/
Property Records
/
Property & Tax Search
/
Parcel Profile
/
Print View
Search for Another Parcel
Parcel Profile
Historical Card
Sketches
Photos
Tax Map
Taxes
Print View
Print This Page
Address: 631 BROWN AVE
Parcel: 19060017021100
Parcel Profile
Address
631 | BROWN | AVE
Street Status
PAVED | SIDEWALK
School District
CITY OF ERIE SCHOOL
Acreage
0.1544
Classification
R
Land Use Code
SINGLE FAMILY
Legal Description
631 BROWN AVE 50XIRR
Square Feet
2128
Topo
ABOVE STREET
Utility
ALL PUBLIC
Zoning
Please contact your municipal zoning officer
Deed Book
2013
Deed Page
006334
2026 Tax Values
Land Value / Taxable
11,500 / 11,500.00
Building Value / Taxable
70,300 / 70,300.00
Total Value / Taxable
81,800 / 81,800.00
Clean & Green
Inactive
Homestead Status
Inactive
Farmstead Status
Inactive
Lerta Amount
0
Lerta Expiration Year
0
Residential Data
Card 1
Style
OLD STYLE
Basement
FULL
Year Built
1916
Exterior Wall
BRICK
Total Living Area
2128
Full Baths
1
Half Baths
0
Fuel Type
GAS
Heating
CENTRAL
Heating System
HOT WATER
Stories
2.0
Total Bedrooms
4
Total Family Rooms
0
Total Rooms
10
Fireplaces
1
Other Buildings & Yards
Description
Built
Width
Length
Area
FRAME OR CB DETACHED GARAGE
1916
32
18
576
Sales History
Sale Date
Type
Price
Book / Page
Other Info
3/20/2013
LAND & BUILDING
82000
2013 / 006334
SPECIAL WARRANTY DEED
12/29/1998
LAND & BUILDING
63000
609 / 588
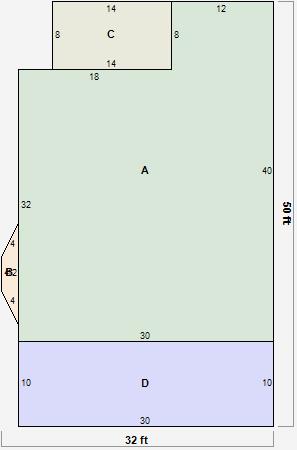
Parcel Sketches
Residential Card 1
A
MAIN
1056 square feet
B
UNFIN BSMT BASEMENT UNFINISHED MABAY MASONRY BAY
16 square feet
C
EMP ENCL MASONRY PORCH EMP ENCL MASONRY PORCH
112 square feet
D
UNFIN BSMT BASEMENT UNFINISHED EMP ENCL MASONRY PORCH
300 square feet
Parcel Images
Please note:
this tab is for informational purposes only and may not show all delinquencies, see the Taxes tab for more accurate delinquent taxes due.