Elected Officials
Courts
Departments
Initiatives
Open Government
About
Login / Register
Home
/
Property & Tax Records
/
Property Records
/
Property & Tax Search
/
Parcel Profile
/
Print View
Search for Another Parcel
Parcel Profile
Historical Card
Sketches
Photos
Tax Map
Taxes
Print View
Print This Page
Address: 2419 POPLAR ST
Parcel: 19060019021800
Parcel Profile
Address
2419 | POPLAR | ST
Street Status
PAVED | SIDEWALK
School District
CITY OF ERIE SCHOOL
Acreage
0.0820
Classification
R
Land Use Code
TWO FAMILY
Legal Description
2419 POPLAR ST 35X102
Square Feet
2258
Topo
LEVEL
Utility
ALL PUBLIC
Zoning
Please contact your municipal zoning officer
Deed Book
1500
Deed Page
1038
2026 Tax Values
Land Value / Taxable
10,400 / 10,400.00
Building Value / Taxable
59,800 / 59,800.00
Total Value / Taxable
70,200 / 70,200.00
Clean & Green
Inactive
Homestead Status
Active
Farmstead Status
Inactive
Lerta Amount
0
Lerta Expiration Year
0
Residential Data
Card 1
Style
OLD STYLE
Basement
FULL
Year Built
1920
Exterior Wall
MASONRY & FRAME
Total Living Area
2258
Full Baths
2
Half Baths
0
Fuel Type
GAS
Heating
CENTRAL A/C
Heating System
FORCED AIR
Stories
1.5
Total Bedrooms
5
Total Family Rooms
0
Total Rooms
10
Fireplaces
1
Other Buildings & Yards
No OBY Data Found
Sales History
Sale Date
Type
Price
Book / Page
Other Info
6/9/2008
LAND & BUILDING
35900
1500 / 1038
SPECIAL WARRANTY DEED
2/29/2008
LAND & BUILDING
0
1479 / 0769
SHERIFF'S DED
12/4/2000
0
0741 / 0704
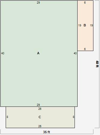
Parcel Sketches
Residential Card 1
A
MAIN
1160 square feet
B
UNFIN BSMT BASEMENT UNFINISHED 1S FR ONE STORY FRAME 1S FR ONE STORY FRAME
114 square feet
C
EMP ENCL MASONRY PORCH
208 square feet
Parcel Images
Please note:
this tab is for informational purposes only and may not show all delinquencies, see the Taxes tab for more accurate delinquent taxes due.