Elected Officials
Courts
Departments
Initiatives
Open Government
About
Login / Register
Home
/
Property & Tax Records
/
Property Records
/
Property & Tax Search
/
Parcel Profile
/
Print View
Search for Another Parcel
Parcel Profile
Historical Card
Sketches
Photos
Tax Map
Taxes
Print View
Print This Page
Address: 618 W 25 ST
Parcel: 19060019022500
Parcel Profile
Address
618 | W | 25 | ST
Street Status
PAVED | SIDEWALK
School District
CITY OF ERIE SCHOOL
Acreage
0.0860
Classification
R
Land Use Code
SINGLE FAMILY
Legal Description
618 W 25 ST 35X107
Square Feet
1236
Topo
LEVEL
Utility
ALL PUBLIC
Zoning
Please contact your municipal zoning officer
Deed Book
0676
Deed Page
0146
2026 Tax Values
Land Value / Taxable
10,600 / 10,600.00
Building Value / Taxable
52,400 / 52,400.00
Total Value / Taxable
63,000 / 63,000.00
Clean & Green
Inactive
Homestead Status
Active
Farmstead Status
Inactive
Lerta Amount
0
Lerta Expiration Year
0
Residential Data
Card 1
Style
OLD STYLE
Basement
FULL
Year Built
1928
Exterior Wall
ALUMINUM/VINYL
Total Living Area
1236
Full Baths
1
Half Baths
1
Fuel Type
GAS
Heating
CENTRAL A/C
Heating System
FORCED AIR
Stories
2.0
Total Bedrooms
3
Total Family Rooms
0
Total Rooms
6
Fireplaces
0
Other Buildings & Yards
Description
Built
Width
Length
Area
FRAME OR CB DETACHED GARAGE
1955
12
20
240
Sales History
Sale Date
Type
Price
Book / Page
Other Info
11/30/1999
LAND & BUILDING
59000
0676 / 0146
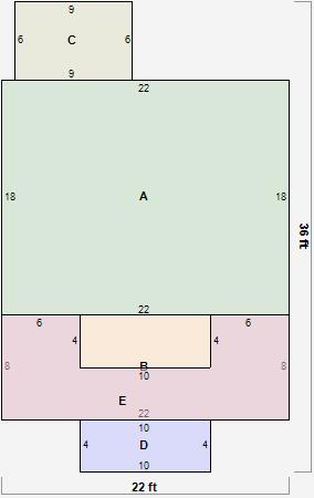
Parcel Sketches
Residential Card 1
A
MAIN
396 square feet
B
UNFIN BSMT BASEMENT UNFINISHED 1S FR ONE STORY FRAME AT FN ATTIC-FINISHED
176 square feet
C
EFP ENCL FRAME PORCH OFP OPEN FRAME PORCH
54 square feet
D
OFP OPEN FRAME PORCH 1S FR ONE STORY FRAME
40 square feet
E
OFP OPEN FRAME PORCH
136 square feet
Parcel Images
Please note:
this tab is for informational purposes only and may not show all delinquencies, see the Taxes tab for more accurate delinquent taxes due.