Elected Officials
Courts
Departments
Initiatives
Open Government
About
Login / Register
Home
/
Property & Tax Records
/
Property Records
/
Property & Tax Search
/
Parcel Profile
/
Print View
Search for Another Parcel
Parcel Profile
Historical Card
Sketches
Photos
Tax Map
Taxes
Print View
Print This Page
Address: 645 W 23 ST
Parcel: 19060019031300
Parcel Profile
Address
645 | W | 23 | ST
Street Status
PAVED | SIDEWALK
School District
CITY OF ERIE SCHOOL
Acreage
0.0995
Classification
R
Land Use Code
TWO FAMILY
Legal Description
645 W 23 ST 42.5X102
Square Feet
1880
Topo
LEVEL
Utility
ALL PUBLIC
Zoning
Please contact your municipal zoning officer
Deed Book
1563
Deed Page
0142
2026 Tax Values
Land Value / Taxable
10,900 / 10,900.00
Building Value / Taxable
53,730 / 53,730.00
Total Value / Taxable
64,630 / 64,630.00
Clean & Green
Inactive
Homestead Status
Inactive
Farmstead Status
Inactive
Lerta Amount
0
Lerta Expiration Year
0
Residential Data
Card 1
Style
OLD STYLE
Basement
FULL
Year Built
1874
Exterior Wall
COMPOSITION
Total Living Area
1880
Full Baths
2
Half Baths
0
Fuel Type
GAS
Heating
CENTRAL A/C
Heating System
FORCED AIR
Stories
2.0
Total Bedrooms
4
Total Family Rooms
0
Total Rooms
8
Fireplaces
0
Other Buildings & Yards
Description
Built
Width
Length
Area
FRAME OR CB DETACHED GARAGE
1950
16
30
480
Sales History
Sale Date
Type
Price
Book / Page
Other Info
5/20/2009
LAND & BUILDING
71500
1563 / 0142
DEED
2/6/2009
LAND & BUILDING
0
1542 / 1181
QUIT CLAIM DEED
8/10/2000
0
0719 / 2266
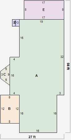
Parcel Sketches
Residential Card 1
A
MAIN
928 square feet
B
OFP OPEN FRAME PORCH OFP OPEN FRAME PORCH
96 square feet
C
UNFIN BSMT BASEMENT UNFINISHED FRBAY FRAME BAY
24 square feet
D
MA STOOP/TERR MAS STOOP
9 square feet
E
WDDCK WOOD DECKS
136 square feet
Parcel Images
Please note:
this tab is for informational purposes only and may not show all delinquencies, see the Taxes tab for more accurate delinquent taxes due.