Elected Officials
Courts
Departments
Initiatives
Open Government
About
Login / Register
Home
/
Property & Tax Records
/
Property Records
/
Property & Tax Search
/
Parcel Profile
/
Print View
Search for Another Parcel
Parcel Profile
Historical Card
Sketches
Photos
Tax Map
Taxes
Print View
Print This Page
Address: 2303 POPLAR ST
Parcel: 19060019031600
Parcel Profile
Address
2303 | POPLAR | ST
Street Status
PAVED | SIDEWALK
School District
CITY OF ERIE SCHOOL
Acreage
0.0937
Classification
R
Land Use Code
TWO FAMILY
Legal Description
2303 POPLAR ST 34X120
Square Feet
1884
Topo
LEVEL
Utility
ALL PUBLIC
Zoning
Please contact your municipal zoning officer
Deed Book
2015
Deed Page
002539
2026 Tax Values
Land Value / Taxable
10,800 / 10,800.00
Building Value / Taxable
45,070 / 45,070.00
Total Value / Taxable
55,870 / 55,870.00
Clean & Green
Inactive
Homestead Status
Inactive
Farmstead Status
Inactive
Lerta Amount
0
Lerta Expiration Year
0
Residential Data
Card 1
Style
OLD STYLE
Basement
FULL
Year Built
1882
Exterior Wall
ALUMINUM/VINYL
Total Living Area
1884
Full Baths
2
Half Baths
0
Fuel Type
GAS
Heating
CENTRAL
Heating System
FORCED AIR
Stories
1.5
Total Bedrooms
3
Total Family Rooms
0
Total Rooms
9
Fireplaces
0
Other Buildings & Yards
No OBY Data Found
Sales History
Sale Date
Type
Price
Book / Page
Other Info
2/11/2015
LAND & BUILDING
0
2015 / 002539
FIDUCIARY DEED
3/19/1982
0
1450 / 0281
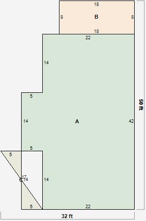
Parcel Sketches
Residential Card 1
A
MAIN
994 square feet
B
1S FR ONE STORY FRAME
144 square feet
C
OFP OPEN FRAME PORCH
70 square feet
Parcel Images
Please note:
this tab is for informational purposes only and may not show all delinquencies, see the Taxes tab for more accurate delinquent taxes due.