Elected Officials
Courts
Departments
Initiatives
Open Government
About
Login / Register
Home
/
Property & Tax Records
/
Property Records
/
Property & Tax Search
/
Parcel Profile
/
Print View
Search for Another Parcel
Parcel Profile
Historical Card
Sketches
Photos
Tax Map
Taxes
Print View
Print This Page
Address: 702 BROWN AVE
Parcel: 19060020010000
Parcel Profile
Address
702 | BROWN | AVE
Street Status
PAVED
School District
CITY OF ERIE SCHOOL
Acreage
0.0847
Classification
R
Land Use Code
SINGLE FAMILY
Legal Description
702 BROWN AVE 34.06X108.35
Square Feet
1536
Topo
ABOVE STREET
Utility
ALL PUBLIC
Zoning
Please contact your municipal zoning officer
Deed Book
1304
Deed Page
0370
2026 Tax Values
Land Value / Taxable
10,500 / 10,500.00
Building Value / Taxable
45,200 / 45,200.00
Total Value / Taxable
55,700 / 55,700.00
Clean & Green
Inactive
Homestead Status
Active
Farmstead Status
Inactive
Lerta Amount
0
Lerta Expiration Year
0
Residential Data
Card 1
Style
OLD STYLE
Basement
FULL
Year Built
1909
Exterior Wall
ALUMINUM/VINYL
Total Living Area
1536
Full Baths
1
Half Baths
0
Fuel Type
GAS
Heating
CENTRAL
Heating System
FORCED AIR
Stories
2.0
Total Bedrooms
4
Total Family Rooms
1
Total Rooms
7
Fireplaces
0
Other Buildings & Yards
No OBY Data Found
Sales History
Sale Date
Type
Price
Book / Page
Other Info
5/12/1978
0
1304 / 0370
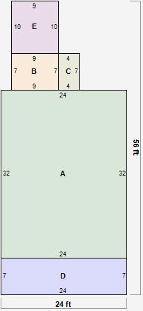
Parcel Sketches
Residential Card 1
A
MAIN
768 square feet
B
EFP ENCL FRAME PORCH
63 square feet
C
MA STOOP/TERR MAS STOOP
28 square feet
D
OFP OPEN FRAME PORCH
168 square feet
E
WDDCK WOOD DECKS
90 square feet
Parcel Images
Please note:
this tab is for informational purposes only and may not show all delinquencies, see the Taxes tab for more accurate delinquent taxes due.