Elected Officials
Courts
Departments
Initiatives
Open Government
About
Login / Register
Home
/
Property & Tax Records
/
Property Records
/
Property & Tax Search
/
Parcel Profile
/
Print View
Search for Another Parcel
Parcel Profile
Historical Card
Sketches
Photos
Tax Map
Taxes
Print View
Print This Page
Address: 1917 LIBERTY ST
Parcel: 19060020011600
Parcel Profile
Address
1917 | LIBERTY | ST
Street Status
PAVED
School District
CITY OF ERIE SCHOOL
Acreage
0.0792
Classification
R
Land Use Code
SINGLE FAMILY
Legal Description
1917 LIBERTY ST 30 X 115
Square Feet
1280
Topo
LEVEL
Utility
ALL PUBLIC
Zoning
Please contact your municipal zoning officer
Deed Book
2024
Deed Page
002540
2026 Tax Values
Land Value / Taxable
10,300 / 10,300.00
Building Value / Taxable
43,060 / 43,060.00
Total Value / Taxable
53,360 / 53,360.00
Clean & Green
Inactive
Homestead Status
Inactive
Farmstead Status
Inactive
Lerta Amount
0
Lerta Expiration Year
0
Residential Data
Card 1
Style
OLD STYLE
Basement
FULL
Year Built
1911
Exterior Wall
ALUMINUM/VINYL
Total Living Area
1280
Full Baths
1
Half Baths
0
Fuel Type
GAS
Heating
CENTRAL
Heating System
FORCED AIR
Stories
2.0
Total Bedrooms
3
Total Family Rooms
0
Total Rooms
7
Fireplaces
0
Other Buildings & Yards
No OBY Data Found
Sales History
Sale Date
Type
Price
Book / Page
Other Info
2/20/2024
LAND & BUILDING
0
2024 / 002540
QUIT CLAIM DEED
11/2/2022
LAND & BUILDING
49900
2022 / 023688
DEED
9/6/2002
LAND & BUILDING
1000
0917 / 1894
11/18/1993
0
0304 / 0505
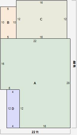
Parcel Sketches
Residential Card 1
A
MAIN
544 square feet
B
OFP OPEN FRAME PORCH
50 square feet
C
UNFIN BSMT BASEMENT UNFINISHED 1S FR ONE STORY FRAME
192 square feet
D
EFP ENCL FRAME PORCH
48 square feet
Parcel Images