Elected Officials
Courts
Departments
Initiatives
Open Government
About
Login / Register
Home
/
Property & Tax Records
/
Property Records
/
Property & Tax Search
/
Parcel Profile
/
Print View
Search for Another Parcel
Parcel Profile
Historical Card
Sketches
Photos
Tax Map
Taxes
Print View
Print This Page
Address: 2201 LIBERTY ST
Parcel: 19060022011100
Parcel Profile
Address
2201 | LIBERTY | ST
Street Status
PAVED | SIDEWALK
School District
CITY OF ERIE SCHOOL
Acreage
0.0884
Classification
R
Land Use Code
MULTIPLE DWELLINGS
Legal Description
2201 03 LIBERTY X 723 W 22ND
Square Feet
3988
Topo
LEVEL
Utility
ALL PUBLIC
Zoning
Please contact your municipal zoning officer
Deed Book
2020
Deed Page
027730
2025 Tax Values
Land Value / Taxable
10,700 / 10,700.00
Building Value / Taxable
59,300 / 59,300.00
Total Value / Taxable
70,000 / 70,000.00
Clean & Green
Inactive
Homestead Status
Inactive
Farmstead Status
Inactive
Lerta Amount
0
Lerta Expiration Year
0
Residential Data
Card 1
Style
OLD STYLE
Basement
FULL
Year Built
1914
Exterior Wall
BRICK
Total Living Area
2688
Full Baths
3
Half Baths
0
Fuel Type
GAS
Heating
CENTRAL
Heating System
FORCED AIR
Stories
2.0
Total Bedrooms
4
Total Family Rooms
0
Total Rooms
10
Fireplaces
0
Card 2
Style
OLD STYLE
Basement
FULL
Year Built
1914
Exterior Wall
BRICK
Total Living Area
1300
Full Baths
1
Half Baths
0
Fuel Type
GAS
Heating
CENTRAL
Heating System
FORCED AIR
Stories
2.0
Total Bedrooms
3
Total Family Rooms
0
Total Rooms
4
Fireplaces
0
Other Buildings & Yards
No OBY Data Found
Sales History
Sale Date
Type
Price
Book / Page
Other Info
12/22/2020
LAND & BUILDING
80000
2020 / 027730
CORPORATE DEED
10/9/2020
LAND & BUILDING
20359
2020 / 021073
SHERIFF'S DED
3/13/2013
LAND & BUILDING
141000
2013 / 005754
SPECIAL WARRANTY DEED
3/18/2010
LAND & BUILDING
70000
2010 / 005915
DEED
3/3/1975
0
1140 / 0016
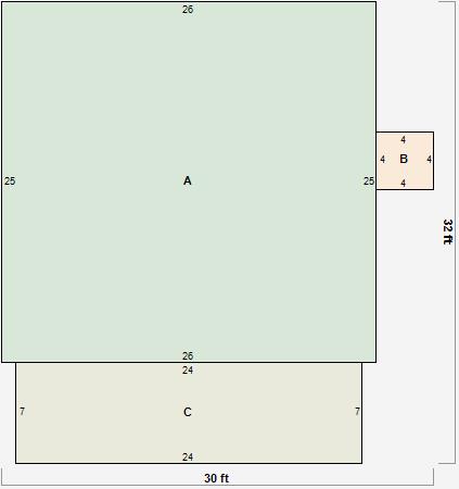
Parcel Sketches
Residential Card 1
A
MAIN
1344 square feet
B
EFP ENCL FRAME PORCH EFP ENCL FRAME PORCH
224 square feet
Residential Card 2
A
MAIN
650 square feet
B
OFP OPEN FRAME PORCH
16 square feet
C
OMP OPEN MASONRY PORCH
168 square feet
Parcel Images