Elected Officials
Courts
Departments
Initiatives
Open Government
About
Login / Register
Home
/
Property & Tax Records
/
Property Records
/
Property & Tax Search
/
Parcel Profile
/
Print View
Search for Another Parcel
Parcel Profile
Historical Card
Sketches
Photos
Tax Map
Taxes
Print View
Print This Page
Address: 931 W 18 ST
Parcel: 19060025021000
Parcel Profile
Address
931 | W | 18 | ST
Street Status
PAVED | SIDEWALK
School District
CITY OF ERIE SCHOOL
Acreage
0.0995
Classification
R
Land Use Code
SINGLE FAMILY
Legal Description
931 W 18 ST 33.34X130
Square Feet
992
Topo
LEVEL
Utility
ALL PUBLIC
Zoning
Please contact your municipal zoning officer
Deed Book
2015
Deed Page
011134
2026 Tax Values
Land Value / Taxable
10,900 / 10,900.00
Building Value / Taxable
32,200 / 32,200.00
Total Value / Taxable
43,100 / 43,100.00
Clean & Green
Inactive
Homestead Status
Active
Farmstead Status
Inactive
Lerta Amount
0
Lerta Expiration Year
0
Residential Data
Card 1
Style
BUNGALOW
Basement
FULL
Year Built
1892
Exterior Wall
ALUMINUM/VINYL
Total Living Area
992
Full Baths
1
Half Baths
0
Fuel Type
GAS
Heating
CENTRAL
Heating System
FORCED AIR
Stories
1.0
Total Bedrooms
3
Total Family Rooms
0
Total Rooms
5
Fireplaces
0
Other Buildings & Yards
Description
Built
Width
Length
Area
FRAME OR CB DETACHED GARAGE
1991
20
22
440
Sales History
Sale Date
Type
Price
Book / Page
Other Info
6/2/2015
LAND & BUILDING
11265
2015 / 011134
DEED
5/18/2006
LAND & BUILDING
10000
1328 / 2093
WARRANTY/SURVIVORSHIP DEED
5/23/1994
0
0336 / 0096
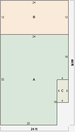
Parcel Sketches
Residential Card 1
A
MAIN
704 square feet
B
1S FR ONE STORY FRAME
288 square feet
C
OFP OPEN FRAME PORCH
32 square feet
Parcel Images
Please note:
this tab is for informational purposes only and may not show all delinquencies, see the Taxes tab for more accurate delinquent taxes due.