Elected Officials
Courts
Departments
Initiatives
Open Government
About
Login / Register
Home
/
Property & Tax Records
/
Property Records
/
Property & Tax Search
/
Parcel Profile
/
Print View
Search for Another Parcel
Parcel Profile
Historical Card
Sketches
Photos
Tax Map
Taxes
Print View
Print This Page
Address: 901 BROWN AVE
Parcel: 19060026010100
Parcel Profile
Address
901 | BROWN | AVE
Street Status
PAVED | SIDEWALK
School District
CITY OF ERIE SCHOOL
Acreage
0.1085
Classification
R
Land Use Code
DWELLING W/ COMMERCIAL USE PRIMARY RES
Legal Description
901 BROWN AVE 43.33 X IRR
Square Feet
2566
Topo
ABOVE STREET
Utility
ALL PUBLIC
Zoning
Please contact your municipal zoning officer
Deed Book
2010
Deed Page
017167
2026 Tax Values
Land Value / Taxable
11,000 / 11,000.00
Building Value / Taxable
55,600 / 55,600.00
Total Value / Taxable
66,600 / 66,600.00
Clean & Green
Inactive
Homestead Status
Active
Farmstead Status
Inactive
Lerta Amount
0
Lerta Expiration Year
0
Residential Data
Card 1
Style
OLD STYLE
Basement
FULL
Year Built
1884
Exterior Wall
ALUMINUM/VINYL
Total Living Area
2566
Full Baths
1
Half Baths
1
Fuel Type
GAS
Heating
CENTRAL A/C
Heating System
FORCED AIR
Stories
2.0
Total Bedrooms
3
Total Family Rooms
1
Total Rooms
10
Fireplaces
0
Other Buildings & Yards
Description
Built
Width
Length
Area
FRAME OR CB DETACHED GARAGE
1955
22
31
682
Sales History
Sale Date
Type
Price
Book / Page
Other Info
7/14/2010
LAND & BUILDING
73900
2010 / 017167
DEED
6/18/2008
LAND & BUILDING
15500
1502 / 1600
WARRANTY/SURVIVORSHIP DEED
11/6/2007
LAND & BUILDING
0
1458 / 0384
SHERIFF'S DED
8/22/2003
LAND & BUILDING
62000
1054 / 1889
WARRANTY/SURVIVORSHIP DEED
4/29/1946
0
0479 / 0340
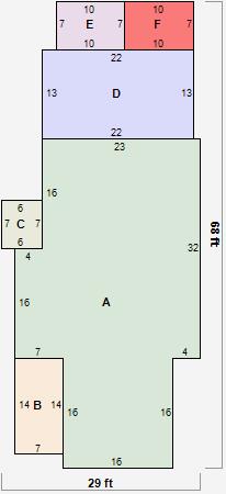
Parcel Sketches
Residential Card 1
A
MAIN
1056 square feet
B
1S FR ONE STORY FRAME
98 square feet
C
EFP ENCL FRAME PORCH
42 square feet
D
1S FR ONE STORY FRAME
286 square feet
E
EFP ENCL FRAME PORCH
70 square feet
F
1S FR ONE STORY FRAME
70 square feet
Parcel Images
Please note:
this tab is for informational purposes only and may not show all delinquencies, see the Taxes tab for more accurate delinquent taxes due.