Elected Officials
Courts
Departments
Initiatives
Open Government
About
Login / Register
Home
/
Property & Tax Records
/
Property Records
/
Property & Tax Search
/
Parcel Profile
/
Print View
Search for Another Parcel
Parcel Profile
Historical Card
Sketches
Photos
Tax Map
Taxes
Print View
Print This Page
Address: 952 W 26 ST
Parcel: 19060028012900
Parcel Profile
Address
952 | W | 26 | ST
Street Status
PAVED | SIDEWALK
School District
CITY OF ERIE SCHOOL
Acreage
0.1331
Classification
R
Land Use Code
SINGLE FAMILY
Legal Description
952 W 26 ST 40X145
Square Feet
1704
Topo
LEVEL
Utility
ALL PUBLIC
Zoning
Please contact your municipal zoning officer
Deed Book
2023
Deed Page
006124
2026 Tax Values
Land Value / Taxable
17,400 / 17,400.00
Building Value / Taxable
52,600 / 52,600.00
Total Value / Taxable
70,000 / 70,000.00
Clean & Green
Inactive
Homestead Status
Active
Farmstead Status
Inactive
Lerta Amount
0.00
Lerta Expiration Year
2014
Residential Data
Card 2
Style
OLD STYLE
Basement
FULL
Year Built
1910
Exterior Wall
ALUMINUM/VINYL
Total Living Area
1704
Full Baths
2
Half Baths
0
Fuel Type
GAS
Heating
CENTRAL
Heating System
FORCED AIR
Stories
2.0
Total Bedrooms
4
Total Family Rooms
0
Total Rooms
0
Fireplaces
0
Other Buildings & Yards
Description
Built
Width
Length
Area
FRAME OR CB DETACHED GARAGE
1910
18
19
342
Sales History
Sale Date
Type
Price
Book / Page
Other Info
4/21/2023
LAND & BUILDING
120000
2023 / 006124
SPECIAL WARRANTY DEED
2/13/2012
LAND & BUILDING
60000
2012 / 003826
SPECIAL WARRANTY DEED
3/2/1961
0
0834 / 0315
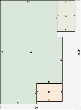
Parcel Sketches
Residential Card 2
A
MAIN
852 square feet
B
EFP ENCL FRAME PORCH
70 square feet
C
EFP ENCL FRAME PORCH
84 square feet
Parcel Images
Please note:
this tab is for informational purposes only and may not show all delinquencies, see the Taxes tab for more accurate delinquent taxes due.