Elected Officials
Courts
Departments
Initiatives
Open Government
About
Login / Register
Home
/
Property & Tax Records
/
Property Records
/
Property & Tax Search
/
Parcel Profile
/
Print View
Search for Another Parcel
Parcel Profile
Historical Card
Sketches
Photos
Tax Map
Taxes
Print View
Print This Page
Address: 2426 PLUM ST
Parcel: 19060028020000
Parcel Profile
Address
2426 | PLUM | ST
Street Status
PAVED | SIDEWALK
School District
CITY OF ERIE SCHOOL
Acreage
0.0964
Classification
R
Land Use Code
SINGLE FAMILY
Legal Description
2426 PLUM ST 35X120
Square Feet
1906
Topo
LEVEL
Utility
ALL PUBLIC
Zoning
Please contact your municipal zoning officer
Deed Book
2012
Deed Page
012081
2026 Tax Values
Land Value / Taxable
8,700 / 8,700.00
Building Value / Taxable
41,000 / 41,000.00
Total Value / Taxable
49,700 / 49,700.00
Clean & Green
Inactive
Homestead Status
Active
Farmstead Status
Inactive
Lerta Amount
0
Lerta Expiration Year
0
Residential Data
Card 1
Style
OLD STYLE
Basement
FULL
Year Built
1900
Exterior Wall
ALUMINUM/VINYL
Total Living Area
1906
Full Baths
2
Half Baths
0
Fuel Type
GAS
Heating
CENTRAL
Heating System
FORCED AIR
Stories
2.0
Total Bedrooms
4
Total Family Rooms
0
Total Rooms
8
Fireplaces
0
Other Buildings & Yards
Description
Built
Width
Length
Area
FRAME OR CB DETACHED GARAGE
1900
24
18
432
Sales History
Sale Date
Type
Price
Book / Page
Other Info
5/11/2012
LAND & BUILDING
45000
2012 / 012081
DEED
10/5/2011
LAND & BUILDING
0
2011 / 023806
SHERIFF'S DED
7/18/2000
LAND & BUILDING
77900
715 / 936
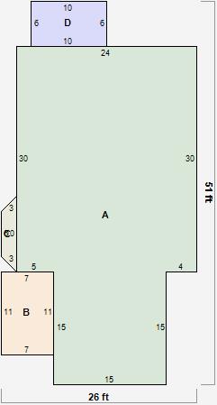
Parcel Sketches
Residential Card 1
A
MAIN
945 square feet
B
OFP OPEN FRAME PORCH
77 square feet
C
UNFIN BSMT BASEMENT UNFINISHED FRBAY FRAME BAY
16 square feet
D
EFP ENCL FRAME PORCH
60 square feet
Parcel Images
Please note:
this tab is for informational purposes only and may not show all delinquencies, see the Taxes tab for more accurate delinquent taxes due.