Elected Officials
Courts
Departments
Initiatives
Open Government
About
Login / Register
Home
/
Property & Tax Records
/
Property Records
/
Property & Tax Search
/
Parcel Profile
/
Print View
Search for Another Parcel
Parcel Profile
Historical Card
Sketches
Photos
Tax Map
Taxes
Print View
Print This Page
Address: 1031 W 21 ST
Parcel: 19060030011100
Parcel Profile
Address
1031 | W | 21 | ST
Street Status
PAVED
School District
CITY OF ERIE SCHOOL
Acreage
0.1023
Classification
R
Land Use Code
SINGLE FAMILY
Legal Description
1031 W 21 ST 33 X 135
Square Feet
1428
Topo
LEVEL
Utility
ALL PUBLIC
Zoning
Please contact your municipal zoning officer
Deed Book
1330
Deed Page
0501
2026 Tax Values
Land Value / Taxable
10,900 / 10,900.00
Building Value / Taxable
59,580 / 59,580.00
Total Value / Taxable
70,480 / 70,480.00
Clean & Green
Inactive
Homestead Status
Inactive
Farmstead Status
Inactive
Lerta Amount
0
Lerta Expiration Year
0
Residential Data
Card 1
Style
OLD STYLE
Basement
FULL
Year Built
1918
Exterior Wall
ALUMINUM/VINYL
Total Living Area
1428
Full Baths
1
Half Baths
0
Fuel Type
GAS
Heating
CENTRAL
Heating System
FORCED AIR
Stories
2.0
Total Bedrooms
3
Total Family Rooms
0
Total Rooms
7
Fireplaces
0
Other Buildings & Yards
No OBY Data Found
Sales History
Sale Date
Type
Price
Book / Page
Other Info
5/24/2006
LAND & BUILDING
64900
1330 / 0501
DEED
5/4/2004
LAND & BUILDING
24900
1131 / 1399
DEED
5/29/2003
LAND & BUILDING
0
1016 / 2043
SHERIFF'S DED
9/28/1979
0
1366 / 0007
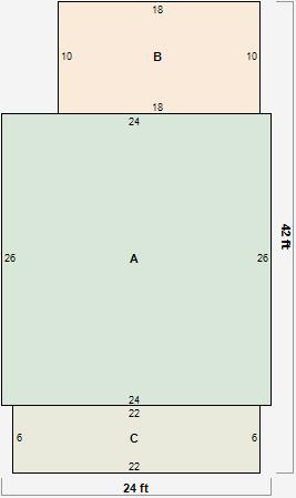
Parcel Sketches
Residential Card 1
A
MAIN
624 square feet
B
1S FR ONE STORY FRAME
180 square feet
C
OFP OPEN FRAME PORCH
132 square feet
Parcel Images