Elected Officials
Courts
Departments
Initiatives
Open Government
About
Login / Register
Home
/
Property & Tax Records
/
Property Records
/
Property & Tax Search
/
Parcel Profile
/
Print View
Search for Another Parcel
Parcel Profile
Historical Card
Sketches
Photos
Tax Map
Taxes
Print View
Print This Page
Address: 2121 RASPBERRY ST
Parcel: 19060030012400
Parcel Profile
Address
2121 | RASPBERRY | ST
Street Status
PAVED | SIDEWALK
School District
CITY OF ERIE SCHOOL
Acreage
0.1045
Classification
R
Land Use Code
TWO FAMILY
Legal Description
2121 RASPBERRY ST 35X130
Square Feet
1778
Topo
LEVEL
Utility
ALL PUBLIC
Zoning
Please contact your municipal zoning officer
Deed Book
2015
Deed Page
021798
2026 Tax Values
Land Value / Taxable
11,000 / 11,000.00
Building Value / Taxable
47,000 / 47,000.00
Total Value / Taxable
58,000 / 58,000.00
Clean & Green
Inactive
Homestead Status
Inactive
Farmstead Status
Inactive
Lerta Amount
0
Lerta Expiration Year
0
Residential Data
Card 1
Style
OLD STYLE
Basement
FULL
Year Built
1890
Exterior Wall
COMPOSITION
Total Living Area
1778
Full Baths
2
Half Baths
0
Fuel Type
GAS
Heating
CENTRAL
Heating System
FORCED AIR
Stories
2.0
Total Bedrooms
4
Total Family Rooms
0
Total Rooms
8
Fireplaces
0
Other Buildings & Yards
No OBY Data Found
Sales History
Sale Date
Type
Price
Book / Page
Other Info
9/30/2015
LAND & BUILDING
70000
2015 / 021798
SPECIAL WARRANTY DEED
6/7/2012
LAND & BUILDING
70000
2012 / 014858
SPECIAL WARRANTY DEED
3/2/2012
LAND & BUILDING
21500
2012 / 005499
DEED
12/2/2011
LAND & BUILDING
0
2011 / 029005
DEED
7/27/2011
LAND & BUILDING
0
2011 / 017197
SHERIFF'S DED
4/22/2005
LAND & BUILDING
51000
1227 / 1445
WARRANTY/SURVIVORSHIP DEED
4/26/2001
0
0768 / 2362
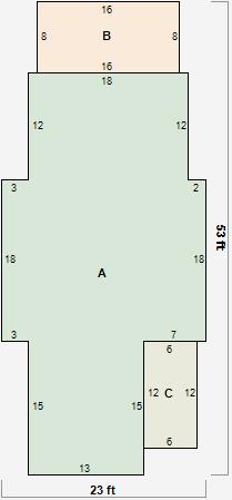
Parcel Sketches
Residential Card 1
A
MAIN
825 square feet
B
1S FR ONE STORY FRAME
128 square feet
C
OFP OPEN FRAME PORCH
72 square feet
Parcel Images
Please note:
this tab is for informational purposes only and may not show all delinquencies, see the Taxes tab for more accurate delinquent taxes due.