Elected Officials
Courts
Departments
Initiatives
Open Government
About
Login / Register
Home
/
Property & Tax Records
/
Property Records
/
Property & Tax Search
/
Parcel Profile
/
Print View
Search for Another Parcel
Parcel Profile
Historical Card
Sketches
Photos
Tax Map
Taxes
Print View
Print This Page
Address: 1017 BROWN AVE
Parcel: 19060031020700
Parcel Profile
Address
1017 | BROWN | AVE
Street Status
PAVED | SIDEWALK
School District
CITY OF ERIE SCHOOL
Acreage
0.0779
Classification
R
Land Use Code
TWO FAMILY
Legal Description
1017 BROWN AVE 42XIRR
Square Feet
1898
Topo
LEVEL
Utility
ALL PUBLIC
Zoning
Please contact your municipal zoning officer
Deed Book
2017
Deed Page
016277
2026 Tax Values
Land Value / Taxable
10,300 / 10,300.00
Building Value / Taxable
52,200 / 52,200.00
Total Value / Taxable
62,500 / 62,500.00
Clean & Green
Inactive
Homestead Status
Inactive
Farmstead Status
Inactive
Lerta Amount
0
Lerta Expiration Year
0
Residential Data
Card 1
Style
OLD STYLE
Basement
FULL
Year Built
1907
Exterior Wall
ALUMINUM/VINYL
Total Living Area
1898
Full Baths
2
Half Baths
0
Fuel Type
GAS
Heating
CENTRAL
Heating System
FORCED AIR
Stories
2.0
Total Bedrooms
4
Total Family Rooms
0
Total Rooms
8
Fireplaces
0
Other Buildings & Yards
No OBY Data Found
Sales History
Sale Date
Type
Price
Book / Page
Other Info
7/31/2017
LAND & BUILDING
47900
2017 / 016277
SPECIAL WARRANTY DEED
11/23/2010
LAND & BUILDING
57400
2010 / 029474
SPECIAL WARRANTY DEED
3/1/2005
LAND & BUILDING
52000
1214 / 0247
DEED
7/3/2001
LAND & BUILDING
32000
789 / 1054
7/3/2001
LAND & BUILDING
32000
789 / 1054
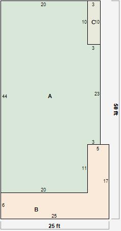
Parcel Sketches
Residential Card 1
A
MAIN
949 square feet
B
OFP OPEN FRAME PORCH
205 square feet
C
OFP OPEN FRAME PORCH
30 square feet
Parcel Images
Please note:
this tab is for informational purposes only and may not show all delinquencies, see the Taxes tab for more accurate delinquent taxes due.