Elected Officials
Courts
Departments
Initiatives
Open Government
About
Login / Register
Home
/
Property & Tax Records
/
Property Records
/
Property & Tax Search
/
Parcel Profile
/
Print View
Search for Another Parcel
Parcel Profile
Historical Card
Sketches
Photos
Tax Map
Taxes
Print View
Print This Page
Address: 1049 W 22 ST
Parcel: 19060031022900
Parcel Profile
Address
1049 | W | 22 | ST
Street Status
PAVED | SIDEWALK
School District
CITY OF ERIE SCHOOL
Acreage
0.0771
Classification
R
Land Use Code
SINGLE FAMILY
Legal Description
1049 W 22 ST 42X80
Square Feet
1430
Topo
LEVEL
Utility
ALL PUBLIC
Zoning
Please contact your municipal zoning officer
Deed Book
1485
Deed Page
0573
2026 Tax Values
Land Value / Taxable
9,200 / 9,200.00
Building Value / Taxable
56,100 / 56,100.00
Total Value / Taxable
65,300 / 65,300.00
Clean & Green
Inactive
Homestead Status
Active
Farmstead Status
Inactive
Lerta Amount
0
Lerta Expiration Year
0
Residential Data
Card 1
Style
OLD STYLE
Basement
FULL
Year Built
1896
Exterior Wall
ALUMINUM/VINYL
Total Living Area
1430
Full Baths
1
Half Baths
0
Fuel Type
GAS
Heating
CENTRAL
Heating System
FORCED AIR
Stories
1.5
Total Bedrooms
2
Total Family Rooms
0
Total Rooms
6
Fireplaces
0
Other Buildings & Yards
Description
Built
Width
Length
Area
FRAME OR CB DETACHED GARAGE
1916
10
19
190
Sales History
Sale Date
Type
Price
Book / Page
Other Info
3/31/2008
LAND & BUILDING
64000
1485 / 0573
WARRANTY/SURVIVORSHIP DEED
4/6/2001
LAND & BUILDING
29000
764 / 239
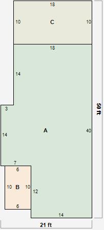
Parcel Sketches
Residential Card 1
A
MAIN
714 square feet
B
OFP OPEN FRAME PORCH
60 square feet
C
1S FR ONE STORY FRAME
180 square feet
Parcel Images
Please note:
this tab is for informational purposes only and may not show all delinquencies, see the Taxes tab for more accurate delinquent taxes due.