Elected Officials
Courts
Departments
Initiatives
Open Government
About
Login / Register
Home
/
Property & Tax Records
/
Property Records
/
Property & Tax Search
/
Parcel Profile
/
Print View
Search for Another Parcel
Parcel Profile
Historical Card
Sketches
Photos
Tax Map
Taxes
Print View
Print This Page
Address: 1032 BROWN AVE
Parcel: 19060031024400
Parcel Profile
Address
1032 | BROWN | AVE
Street Status
PAVED | SIDEWALK
School District
CITY OF ERIE SCHOOL
Acreage
0.0355
Classification
R
Land Use Code
SINGLE FAMILY
Legal Description
1032 BROWN AVE 36XIRR
Square Feet
1152
Topo
LEVEL
Utility
ALL PUBLIC
Zoning
Please contact your municipal zoning officer
Deed Book
2020
Deed Page
023239
2026 Tax Values
Land Value / Taxable
8,600 / 8,600.00
Building Value / Taxable
45,400 / 45,400.00
Total Value / Taxable
54,000 / 54,000.00
Clean & Green
Inactive
Homestead Status
Active
Farmstead Status
Inactive
Lerta Amount
0
Lerta Expiration Year
0
Residential Data
Card 1
Style
OLD STYLE
Basement
FULL
Year Built
1920
Exterior Wall
ALUMINUM/VINYL
Total Living Area
1152
Full Baths
1
Half Baths
1
Fuel Type
GAS
Heating
CENTRAL
Heating System
FORCED AIR
Stories
2.0
Total Bedrooms
4
Total Family Rooms
0
Total Rooms
7
Fireplaces
0
Other Buildings & Yards
No OBY Data Found
Sales History
Sale Date
Type
Price
Book / Page
Other Info
11/2/2020
LAND & BUILDING
0
2020 / 023239
FIDUCIARY DEED
9/9/1983
0
1508 / 0490
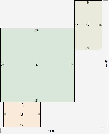
Parcel Sketches
Residential Card 1
A
MAIN
576 square feet
B
EFP ENCL FRAME PORCH
96 square feet
C
FR GR FRAME GARAGE
144 square feet
Parcel Images
Please note:
this tab is for informational purposes only and may not show all delinquencies, see the Taxes tab for more accurate delinquent taxes due.